Eladó családi ház Pilis 56 640 000 Ft

Leírás

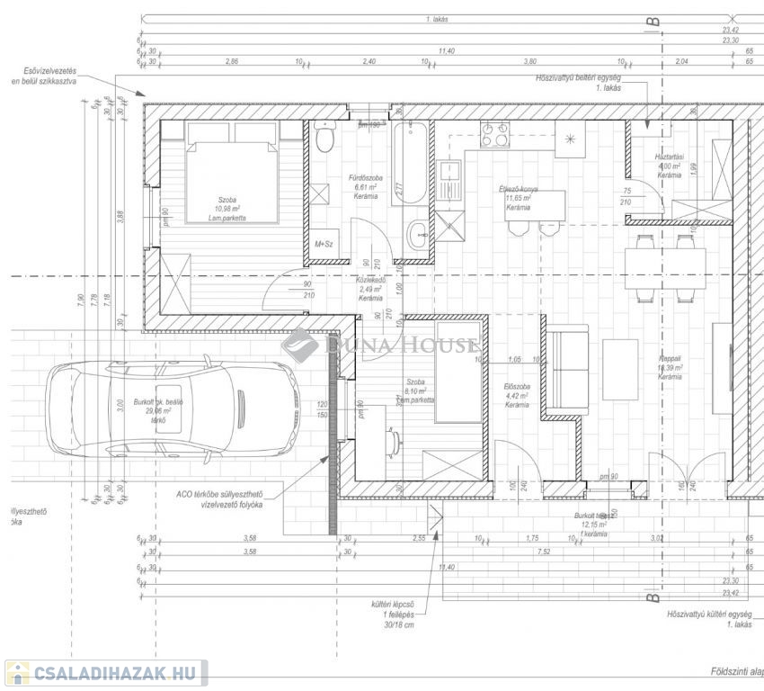
ELADÓ ÚJ ÉPÍTÉSŰ 3 szobás, 67m2-es IKERHÁZ Pilisen, VASÚTÁLLOMÁSHOZ KÖZELI, KIVÁLÓ UTCÁBAN!

OTTHON START HITEL IGÉNYELHETŐ!

PILIS LEGJOBB KIVITELEZŐJÉTŐL. ÁLMODD MEG TE IS SAJÁT OTTHONOD!

Alapterület 67 m2Terasz:12,15m2
Telek területe: 412m2

Választható hideg és meleg burkolatok 700.000 Ft-ig teljes rétegrendben.
Dekorfóliás ajtók 60.000 Ft-ig választhatók.
Szaniterek: 250.000 Ft-ig
Kialakítása: 2 szoba, tágas amerikai nappali konyha, háztartási helyiség, előtér, közlekedő, fürdő+wc, nyitott terasz.

Több referenciamunka megtekinthető, minőségi munkák, több éves közös együttműködés.
Teljes műszaki tartalom a helyszínen megtekinthető.

EXTRA:-Barna színű betoncserép fedés, barna színű alumínium ereszcsatorna.
-7x3-as térkő kocsibeálló( füst antracit) az árban
-utcafronti kerítés és az elektromos kapu az árban
Fűtést és a meleg vizet: 8,5 kw-os 1 fázisú hőszivattyú adja, padlófűtés mindenhol. 3,5 kw-os inverteres klíma az árban.

Műszaki paraméterek:30 cm-es ytong teherhordó fal, 10 cm-es viablokk válaszfalak, 6 cm Eps homlokzati szigetelés, 3 rétegű üvegezésű, műanyag fehér nyílászárók, több ponton záródó bejárati ajtó.

Hőszigetelés: A padlóban 6 cm lépésálló EPS szigetelés készül a csatolt rétegrendek szerint. A pórusbeton falazat külső oldalán 6 cm EPS hőszigetelés kerül elhelyezésre, a vasbeton koszorúk előtt további 10 cm kiegészítő hőszigetelés, 30 cm fújt hőszigetelés a mennyezetre.

Homlokzatképzés: Az épület homlokzati felületképzése törtfehér színű kapart nemesvakolat. A lábazat sötétbarna színű lábazati festék. Az épülettömeg megjelenése illeszkedik az utcaképbe, a színek és megjelenés megválasztásakor figyelembe lettek véve a hatályos helyi településképi rendelet előírásai.

Budapest távolsága M4-es autópályán 25 perc, Vonattal 40 perc.

Várható Átadás: 2026.év vége

CSOK plusz kedvezményes hitel igénybe vehető.
Amennyiben felkeltettem érdeklődését, várom megtisztelő hívását. Ügyvédi közreműködés és hitelügyintézés egy helyen.

Referencia szám: HZ078804

Családi ház részletei

Ár: 56 640 000 Ft
Méret: 67 négyzetméter
Azonosító: 11579161
Irodai azonosító: HZ078804-5082994
Telek: 412 négyzetméter
Ingatlan állapota: Épülő
Jelleg: ikerház
Építőanyag: Tégla
Fűtés jellege: Villany
Fűtés módja: Hőszivattyú
Komfort fokozat: Összkomfort
Kor: Új építésű
Szintek száma: Földszintes
Egész szobák: 3

Egyéb jellemzők

  • Garázs

Térkép


Így keressen családi házat négy egyszerű lépésben. Csupán 2 perc, kötelezettségek nélkül!

Szűkítse a családi házak
listáját
Válassza ki a megfelelő
családi házat
Írjon a hirdetőnek
Várjon a visszahívásra