Eladó családi ház Pilis 56 000 000 Ft

Leírás

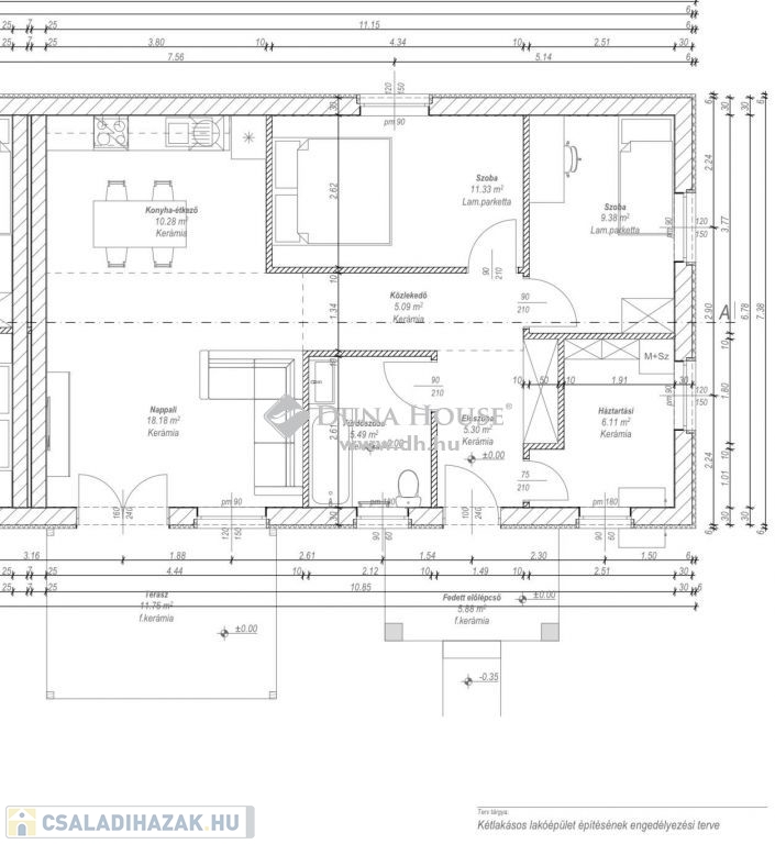
ELADÓ ÚJ ÉPÍTÉSŰ 3 szobás IKERHÁZ Pilisen.

Alapterület 71 m2
Terasz:11.75 m2
Telek területe: 500 m2

Választható hideg és meleg burkolatok 700.000 Ft-ig teljes rétegrendben. Dekorfóliás ajtók 60.000 Ft-ig választhatók.
Szaniterek: 250.000 Ft-ig

Kialakítása: 2 szoba, tágas amerikai nappali konyha, háztartási helyiség, előtér, közlekedő, fürdő+wc, nyitott terasz.

Több referenciamunka megtekinthető, minőségi munkák, több éves közös együttműködés.
Teljes műszaki tartalom a helyszínen megtekinthető.

Barna színű betoncserép fedés, barna színű alumínium ereszcsatorna.

Fűtést és a meleg vizet: 8,5 kw-os 1 fázisú hőszivattyú adja, padlófűtés mindenhol. 3,5 kw-os inverteres klíma az árban.

Műszaki paraméterek:
30 cm-es ytong teherhordó fal, 10 cm-es porotherm tégla válaszfalak, 6 cm Eps homlokzati szigetelés.
3 réteg műanyag fehér nyílászárók, több ponton záródó bejárati ajtó.

Hőszigetelés:
A padlóban 10 cm lépésálló EPS szigetelés készül a csatolt rétegrendek szerint. A tetőben a födémgerendák között 20 cm kőzetgyapot hőszigetelés készül, majd a gerendák fölött további 10 cm kiegészítő kőzetgyapot hőszigetelés kerül elhelyezésre. A pórusbeton falazat külső oldalán 6 cm EPS hőszigetelés kerül elhelyezésre, a vasbeton koszorúk előtt további 10 cm kiegészítő hőszigetelés elhelyezése szükséges.

Homlokzatképzés:
Az épület homlokzati felületképzése törtfehér színű kapart nemesvakolat. A lábazat sötétbarna színű lábazati festék. Az épülettömeg megjelenése illeszkedik az utcaképbe, a színek és megjelenés megválasztásakor figyelembe lettek véve a hatályos helyi településképi rendelet előírásai.

Budapest távolsága M4-es autópályán 25 perc, Vonattal 45 perc.

Várható Átadás: 2025. év vége

CSOK plusz kedvezményes hitel igénybe vehető.Amennyiben felkeltettem érdeklődését, várom megtisztelő hívását.
Ügyvédi közreműködés és hitelügyintézés egy helyen.

Családi ház részletei

Ár: 56 000 000 Ft
Méret: 71 négyzetméter
Azonosító: 11510308
Irodai azonosító: HZ055883-4906443
Telek: 500 négyzetméter
Ingatlan állapota: Épülő
Jelleg: ikerház
Építőanyag: Tégla
Fűtés jellege: Villany
Fűtés módja: Hőszivattyú
Kor: Új építésű
Szintek száma: Földszintes
Egész szobák: 3

Térkép


Így keressen családi házat négy egyszerű lépésben. Csupán 2 perc, kötelezettségek nélkül!

Szűkítse a családi házak
listáját
Válassza ki a megfelelő
családi házat
Írjon a hirdetőnek
Várjon a visszahívásra