Eladó családi ház Pilis 99 980 000 Ft

Leírás

Akár három lakásos házként , társasházként, vagy befektetőknek kereskedelmi szempontból is releváns lehet az általam kínált ingatlan.

Akár két generáció együttélésére is !

A szuterénben vállalkozás is végezhető, vagy lakássá alakítható.



Pilis város központjához közel , egy betonsáv alapon nyugvó, könnyűszerkezetes falazatú szigetelt ,fa födémes, padlástér beépítéses lakóház vált eladóvá.



Folyamatosan karbantartott, gondos tulajdonosok otthona.
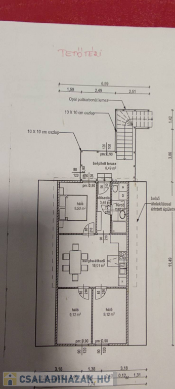
Az ingatlan három szintes.
A ház összes alapterülete 134 nm ebböl:
Földszint 91,3 m²
Tetőtér 53,32m²
+Szuterén 70m²
Az szuterén 2 nagy helységből áll fűthető ,zárható helységek,burkolva van, a belmagassága 205 méter.
Budapestől 50 km belül eladó felújított 2 szintes családi ház.
Ferihegy repülőtértől 40 km belül található az ingatlan. Az M4 autó útól 2,5 km van.

Az ingatlan Ingyenes Komplex pályázatott nyert a kivitelezés folyamaban van .
Komplex pályázat azt foglalja magában hogy 3 rétegű nyilászárak vannak ez már kész ,még folyamatban a 3 fázis kialakitása, napelem,légkondicionáló készülékek és a tároló felrakása.)A pályázat ingyen átruházható az ingatlan vevőjére nyilván bizonyos feltételeknek meg kell felelnie.

A ház könnyű szerkezetes, 10 cm szigetelés,
Térkövezet kocsibeálló 70nm.
Elekromos a nagy kapu.

Családi ház részletei

Ár: 99 980 000 Ft
Méret: 143 négyzetméter
Azonosító: 11552481
Telek: 677 négyzetméter
Ingatlan állapota:
Jelleg: családi ház
Építőanyag: Kérdezzen rá a hirdetőtől »
Komfort fokozat: Összkomfort
Egész szobák: 4
Fél szobák: 3

Egyéb jellemzők

  • Csatorna
  • Garázs
  • Kábel TV
  • Melléképület
  • Parketta
  • Pince
  • Terasz

Így keressen családi házat négy egyszerű lépésben. Csupán 2 perc, kötelezettségek nélkül!

Szűkítse a családi házak
listáját
Válassza ki a megfelelő
családi házat
Írjon a hirdetőnek
Várjon a visszahívásra