Eladó családi ház Petrikeresztúr 68 000 000 Ft

Leírás

Zalaegerszegtől 18 km-re igényesen FELÚJÍTOTT CSALÁDI HÁZ 5354 m2-es, BEKERÍTETT TERÜLETTEL vált eladóvá.

Petrikeresztúrban keresi új tulajdonosát egy 101 nm hasznos alapterületű családi ház, 2 garázzsal, gazdálkodásra alkalmas hatalmas területtel!

Ingatlan jellemzői:
-Minőségi kivitelezés: Porotherm tégla falazat, vasbeton födém, Bramac tető
-Alapterület: 101 nm hasznos alapterület, 123,5 nm bruttó alapterület
-Teljes körű szigetelés: rendkívül alacsony fenntartási költséggel
-Gazdaságos fenntartás: korszerű, 4 éves gázkazán, mindössze 7.500 Ft-os havi gázszámlával és 5.000 Ft körüli áramszámlával
-Praktikus kiegészítő épületek: kerti pihenő, dupla garázs és tároló helyiségek
-Teljesen körbekerített 5400nm-es telek: biztonság és nyugalom a család számára
-33 méter utcafronti szélesség (2 helyrajzi számon, 22+11m)

Ami még vár Önre:
-Tágas 40nm-es dupla garázs
-18 nm-es földpince
-Hangulatos, fedett, 20 négyzetméteres kerti pihenő
-15 nm-es fatároló
-Bőven termő gyümölcsfákkal teli kert
-Állattartásra és önellátó gazdálkodásra kiválóan alkalmas terület.

EXTRA: A vételár részét képezi egy 2.100 nm-es akácos terület is, amennyiben az érdeklődő igényt tart rá.

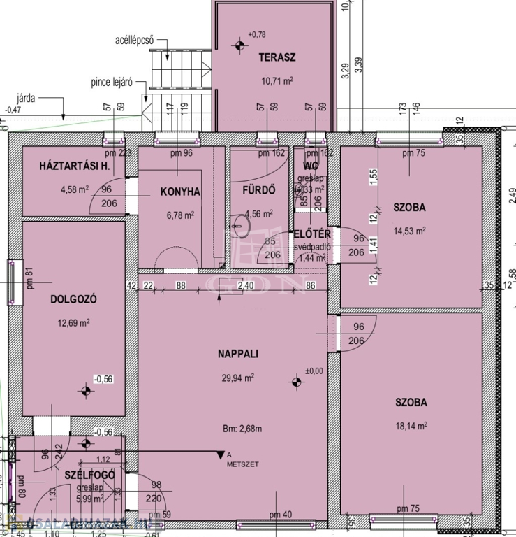
A lakóházban kedvező elosztásának köszönhetően találunk egy tágas nappalit, egy konyhát, ebből nyíló kamrát, három külön bejáratú tágas szobát, egy fürdőkáddal felszerelt fürdőszobát, külön toalettet, egy előszobát és pincét.

Nyílászárói hőszigetelt műanyag ablakok. A tető nyereg formájú cseréppel fedett.
A melegért és a meleg víz ellátásáért gáz cirkó kazán gondoskodik radiátor hőleadókkal.
A ház víz, gáz, és áram közművel rendelkezik. A községben hamarosan kialakításra kerül a csatorna hálózat, jelenleg emésztő van kialakítva a szennyvíznek.
A lakóingatlanhoz tartózó bekerített terület számos bokrot, gyümölcsfát, virágot, füvesített gyepterületet foglal magába.

A két helyrajzi szám miatt a kisebb belterületi ingatlan később akár külön is értékesíthető, vagy akár be is építhető.

Tömegközlekedéssel is könnyen megközelíthető a falu.

Irányár: 68.000.000 Ft

Az ingatlan CSOK+-ra és falusi CSOK-ra is alkalmas, PER ÉS TEHERMENTES, így Ön gyorsan és gördülékenyen költözhet be új otthonába.

Ne hagyja ki ezt az egyedi lehetőséget! Irodánk INGYENES HITEL-TANÁCSADÁSSAL és KEDVEZŐ ÜGYVÉDI SZOLGÁLTATÁSOKKAL áll rendelkezésére, hogy minél könnyebben megvalósuljon az álomotthon megszerzése.
Keressen bennünket bizalommal és nézzük meg együtt ezt a különleges ingatlant!

Családi ház részletei

Ár: 68 000 000 Ft
Méret: 101 négyzetméter
Azonosító: 11529965
Irodai azonosító: 382090
Cím: 5354 nm-es terület, felújított ház!
Telek: 5354 négyzetméter
Ingatlan állapota: Felújított
Jelleg: családi ház
Építőanyag: Tégla
Fűtés jellege: Cirkó
Fűtés módja: Gáz
Komfort fokozat: Összkomfort
Kor: 21-50 éves
Szintek száma: Földszintes
Egész szobák: 4

Egyéb jellemzők

  • Csatorna
  • Garázs
  • Pince
  • Terasz

Térkép


Így keressen családi házat négy egyszerű lépésben. Csupán 2 perc, kötelezettségek nélkül!

Szűkítse a családi házak
listáját
Válassza ki a megfelelő
családi házat
Írjon a hirdetőnek
Várjon a visszahívásra