Eladó családi ház Pétfürdő 84 990 000 Ft

Leírás

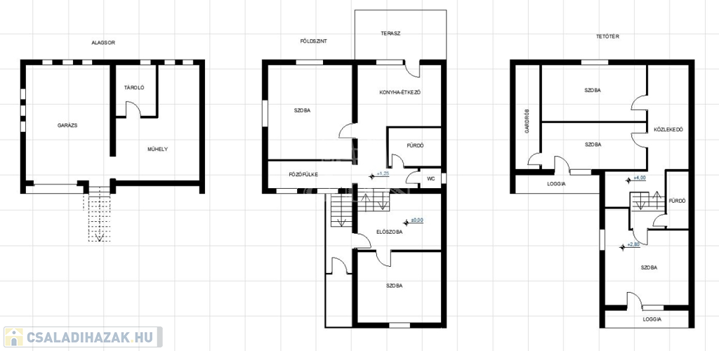
Pétfürdőn eladásra kínálunk egy csendes, zöldövezeti részen lévő 170 m2-es eltolt szintekkel megoldott családi házat 720 m2-es telekkel a GDN Ingatlanhálózat kínálatából.

Tulajdonságok:
- Ha csendes környezetre, madárcsicsergésre, erdőszéli hangulatra vágyik; de fontos, hogy Veszprém, Várpalota, vagy Székesfehérvár városok illetve a Balaton is közel legyen, akkor jó helyen jár. Ingázóknak tökéletes választás ez az ingatlan.

- Víz, villany, gáz, csatorna a házba bekötésre került.
- Az épület cserépfedésű tetővel, ytong tégla falazattal és vasbeton födémmel készült, a nyílászárók fa és műanyag szerkezetűek, redőnnyel felszerelt.
- Fűtése gáz cirkó, illetve vegyestüzelésű kazánnal megoldott.
- A füvesített hátsó kertben díszcserjék találhatóak, az előkertben locsoló víz is rendelkezésre áll.
- Az igen nagy és tulajdonképpen 3 szinten kialakított  ház azonnal beköltözhető, kényelmes, tágas hátsó fedett teraszán élvezheti a pihenést!
- Az alsó szinten üvegbejáratú teraszról a garázsba és az alsószint előszobájába lépünk. Innen nyílik egy nagyobb méretű szoba, valamint a lépcsőfeljáró. A lépcsőfeljárón keresztül jutunk el a következő szint főzőfülkéjéhez, amely akár szoba kialakítására is alkalmas lehet, még egy nagyobb szobát találunk itt, a konyhát, a fürdőszobát, WC-t, valamint a kertkapcsolatos teraszt.

- Erről a szintről tovább, lépcsőkön keresztül a következő szintre jutunk, ahol 1 hálószoba várja új lakóit és a fürdőszoba.
A tetőtérben tágas plusz két szoba található és egy irodának kialakított sarok. Igény szerint a házban több ponton beépített gardrób kialakítása valósult meg.
- Az alsó szinten pedig egy jókora garázs, mellette műhely kialakítása valósult meg. Ez a két helyiség akár külön lakrésznek, akár apartmannak, vagy tárolónak, műhelynek, irodának is kialakítható, új funkciója a fantáziára van bízva.
- A városközponthoz közel található, közeli látványosság a csónakázó tó, valamint egy közeli halastó.

Ajánljuk az ingatlant azoknak, akik Pétfürdőn szeretnének letelepedni; csendes, nyugodt környezetre vágynak, de mégis közel szeretnének lenni a közeli városokhoz; valamint azoknak is, akik a hangos nyüzsgéstől mentesen szeretnék szabadidejüket tölteni, madárcsicsergésre ébredni.

 Ne hagyja ki ezt a remek lehetőséget!

Amennyiben a veszprémi GDN Ingatlaniroda által kínált pétfürdői családi ház, vagy bármely, a kínálatunkban található ingatlan felkeltette érdeklődését, forduljon hozzám bizalommal!

Ingatlanirodánk díjmentes, banksemleges hitelügyintézéssel, illetve ügyvédi tanácsadással is áll Ügyfeleink rendelkezésére!

Családi ház részletei

Ár: 84 990 000 Ft
Méret: 170 négyzetméter
Azonosító: 11538964
Irodai azonosító: 382974
Cím: Diófa utca
Telek: 720 négyzetméter
Ingatlan állapota:
Jelleg: családi ház
Építőanyag: Tégla
Fűtés jellege: Cirkó
Fűtés módja: Gáz
Komfort fokozat: Összkomfort
Kor: 21-50 éves
Szintek száma: 2 szint
Egész szobák: 5

Egyéb jellemzők

  • Csatorna
  • Garázs
  • Pince
  • Terasz

Térkép


Így keressen családi házat négy egyszerű lépésben. Csupán 2 perc, kötelezettségek nélkül!

Szűkítse a családi házak
listáját
Válassza ki a megfelelő
családi házat
Írjon a hirdetőnek
Várjon a visszahívásra