Eladó családi ház Pétfürdő 58 000 000 Ft

Leírás

Pétfürdőn eladásra kínálunk egy csendes, zöldövezeti részen lévő 84 m2-es sorházat 100 m2-es telekkel és egy 47 m²-es különálló garázzsal a GDN Ingatlanhálózat kínálatából.

Tulajdonságok:
- Ha csendes környezetre, vágyik; de fontos, hogy a többi nagy város mint: Veszprém, Várpalota, vagy Székesfehérvár illetve a Balaton is közel legyen, akkor jó helyen jár. Ingázóknak tökéletes választás ez az ingatlan!

- Víz, villany, gáz, csatorna a házba bekötésre került.
- Az épület lapostetővel, tégla falazattal 10 cm-es szigeteléssel és vasbeton födémmel készült, a nyílászárók alumínium és műanyag szerkezetűek, redőnnyel felszerelt.
- Az ingatlanhoz tartozik egy hangulatos füvesített hátsó kert, illetve a különálló, 80 m2-es garázs is, amely akár apartman kialakítására is ideális lehetőséget nyújt az új tulajdonosnak.

- Az igényesen kialakított ingatlan elektromos redőnyökkel is felszerelt a teljes lakószinten, valamint klíma beszerelése is megtörtént a felső szobákban.
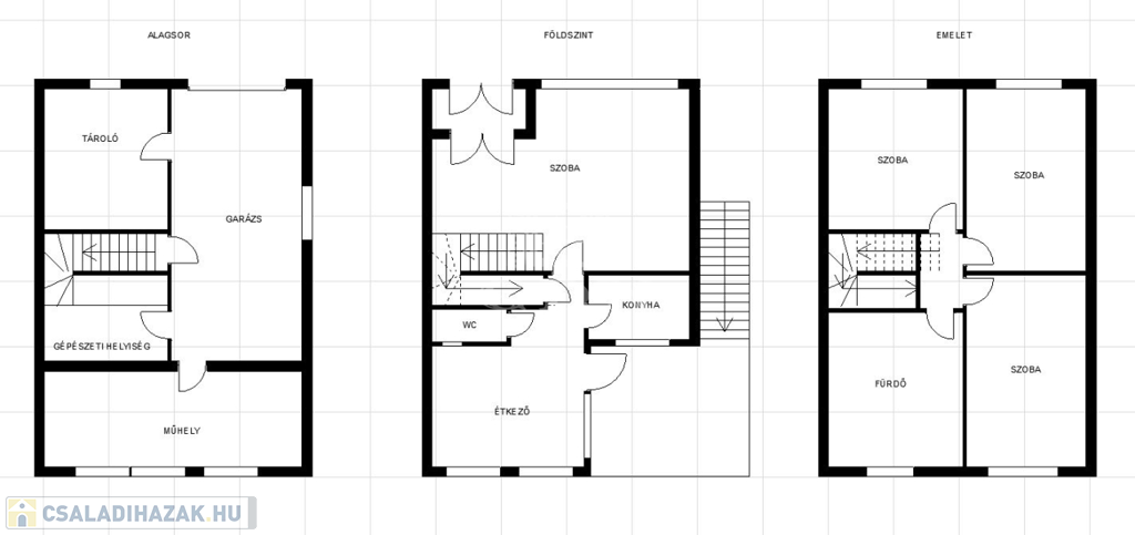
- Az alsó szinten szép tágas teraszról az előtér-étkezőbe lépünk.
Innen nyílik  egy nagyobb méretű szoba, valamint a konyha, mosdó-WC-vel és a lépcsőlejáró a garázshoz. A szobában található a kényelmes feljáró az emeletre, ahol a 3 további szobába és a szép tágas és felújított fürdőszobába jutunk.
- A legalsó szinten pedig  a jókora garázs mellett 2 műhely kialakítása valósult meg, illetve itt találjuk még a gépezet helyiséget is.
- A városközponthoz közel található, egy nagyon szép park és játszótér van még a közelben, illetve látványosság a csónakázó tó, valamint közeli halastó.

Ajánljuk az ingatlant azoknak, akik Pétfürdőn szeretnének letelepedni; csendes, nyugodt környezetre vágynak, de mégis közel szeretnének lenni a közeli városokhoz; valamint azoknak is, akik a hangos nyüzsgéstől mentesen szeretnék szabadidejüket tölteni.

Ne hagyja ki ezt a remek lehetőséget!

Amennyiben a veszprémi GDN Ingatlaniroda által kínált pétfürdői sorház, vagy bármely, a kínálatunkban található ingatlan felkeltette érdeklődését, forduljon hozzám bizalommal!

Ingatlanirodánk díjmentes, banksemleges hitelügyintézéssel, illetve ügyvédi tanácsadással is áll Ügyfeleink rendelkezésére!

Családi ház részletei

Ár: 58 000 000 Ft
Méret: 120 négyzetméter
Azonosító: 11538963
Irodai azonosító: 382975
Cím: Bocskai utca
Telek: 110 négyzetméter
Ingatlan állapota:
Jelleg: sorház
Építőanyag: Tégla
Fűtés jellege: Cirkó
Fűtés módja: Gáz
Komfort fokozat: Összkomfort
Kor: 50 évesnél régebbi
Szintek száma: 1 szint
Egész szobák: 4

Egyéb jellemzők

  • Csatorna
  • Garázs
  • Pince
  • Terasz

Térkép


Így keressen családi házat négy egyszerű lépésben. Csupán 2 perc, kötelezettségek nélkül!

Szűkítse a családi házak
listáját
Válassza ki a megfelelő
családi házat
Írjon a hirdetőnek
Várjon a visszahívásra