Eladó családi ház Perkáta 79 900 000 Ft

Leírás

Perkáta településen aszfaltos utcában új építésű családi ház ELADÓ!

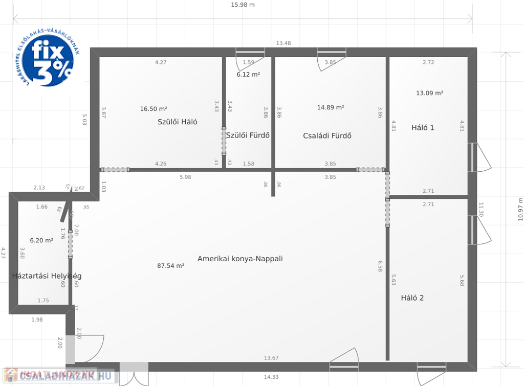
A ház alapterülete 120 m2, a telek 2300 m2.A telken bőven van hely plusz melléképület, garázs, kerti tároló, stb. kialakításához. Elosztása: 3 szoba, plusz egy nagy légterű amerikai konyha-nappali, egy nagyobb, családi fürdőszoba (kád+zuhany), és a szülői háló mellett egy kisebb fürdőszoba (csak zuhanyzó). Valamint egy háztartási helyiség is van az épületben, itt már előkészített kiállások a mosó-és szárítógép számára. A ház 30as Porotherm téglából épült, erre 15 cm vastag grafitos hőszigetelés került, a födémbe 30 cm padlás szigetelés került.A fűtést, melegvizet és a hűtést korszerű hőszivattyú biztosítja, melyhez gazdaságos H tarifa is rendelekzésre áll. A tetőszerkezet kialakítása lehető teszi a későbbiekben napelem rendszer telepítését, de ez már a leendő tulajodnosra vár.
CSOK +, és 3% Start Hitel feltételeknek megfelel!!
Átadás nyár eleje-közepe.
Telefon: 06 20 290 6657

Megtekintés telefonon történt egyeztetés után lehetséges!

Ára: 79,9 M Ft.

Családi ház részletei

Ár: 79 900 000 Ft
Méret: 120 négyzetméter
Azonosító: 11611603
Telek: 2300 négyzetméter
Ingatlan állapota: Épülő
Jelleg: családi ház
Építőanyag: Tégla
Fűtés jellege: Hőszivattyú
Fűtés módja: Hőszivattyú
Komfort fokozat: Összkomfort
Kor: Új építésű
Elhelyezkedés: Utcafronti
Szintek száma: Földszintes
Egész szobák: 4

Egyéb jellemzők

  • Csatorna
  • Melléképület
  • Padlás
  • Pince
  • Terasz

Így keressen családi házat négy egyszerű lépésben. Csupán 2 perc, kötelezettségek nélkül!

Szűkítse a családi házak
listáját
Válassza ki a megfelelő
családi házat
Írjon a hirdetőnek
Várjon a visszahívásra