Eladó családi ház Pécsely 399 000 000 Ft

Leírás

A CASANETWORK BALATONALMÁDI Ingatlaniroda eladásra kínálja a 2697. referenciaszámú családi házát vendégházzal erdővel a Balaton-felvidéken!

2,4 hektáros, öko-birtok a Balaton-felvidéki Nemzeti Park legfelső pontjai egyikén – lélegzetelállító, páratlan panorámával

A birtok közel 400 méterrel a tengerszint felett, a Balaton-felvidék egyik legkülönlegesebb pontján helyezkedik el. Innen a Tihanyi-félsziget már madártávlatból tárul a szemünk elé – ritka és valóban varázslatos látvány.

A panorámát tovább fokozza a birtokot körülölelő nyugodt, élő, gazdag természet: buja növényzet, érintetlen erdők és békés környezet biztosítják a teljes elvonulás élményét.

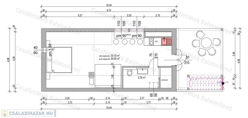
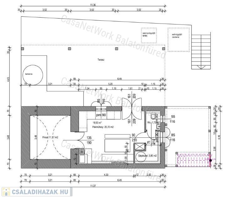
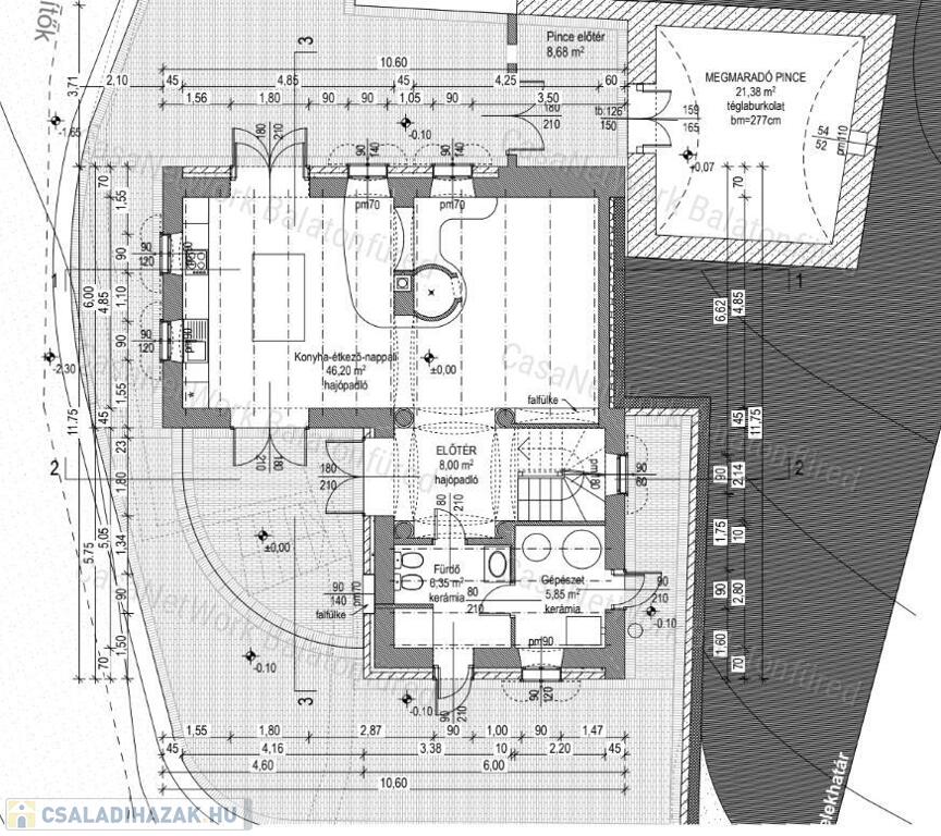
A területen két főépület található: egy nettó 113 m²-es családi ház és egy 72 m²-es (+ 65 m2 terasz) vendégház, valamint egy különálló szaunaház, fürdődézsa, egy 40 m²-es fa szerkezetű istálló és egyéb állattartásra alkalmas karám.

A birtok három, egymással szomszédos helyrajzi számon fekszik. Az eladó a teljes területet egyben szeretné értékesíteni, de nyitott arra is, hogy az egyes helyrajzi számok külön tulajdonoshoz kerüljenek.

A különálló helyrajzi számok fő jellemzői:


6621 m² terület, 113 m²-es családi ház (földszint+tetőtér)
Tulajdoni lap szerint: kivett zártkerti művelés alól kivett terület, gazdasági épület és földpince




4413 m² terület, 72 m²-es vendégház 50+15 m2-es teraszokkal (földszint+tetőtér)
Tulajdoni lap szerint: rét és gazdasági épület, szőlő, gyümölcsös




12 611 m² erdő
Tulajdoni lap szerint: rét



A birtok teljesen önfenntartó:

– az áramellátást szigetüzemű napelemrendszer biztosítja,

– a vízellátás fúrt kútból történik,

– a fűtés kazánnal és kandallóval működik,

– a melegvizet napkollektorok állítják elő.

Mindkét épülethez száraz pince és nagy, panorámás terasz tartozik.

Ez a hely ideális választás mindazok számára, akik természetközeli, önellátó életre vágynak, szeretnének gazdálkodni, állatokat tartani vagy egyszerűen csak elvonulnának a város zajától. Az 5 éve működő vendégház ráadásként biztos bevételi forrást is jelenthet.

Befektetők számára a birtok exkluzív szálláshely szolgáltatásra, öko-turizmusra kiváló lehetőséget nyújt.












Jöjjön el, nézze meg saját szemével ezt az egyedülálló helyet – ha magával ragadja, tegye meg ajánlatát.

Irodánk az ingatlan vásárlással összefüggő teljes körű ügyvédi, ill. díjmentes, banksemleges hitel-ügyintézéssel áll rendelkezésére.

CasaNetwork - A civilizált ingatlanértékesítés artériája.

Várom megtisztelő érdeklődését!


Családi ház részletei

Ár: 399 000 000 Ft
Méret: 207 négyzetméter
Azonosító: 11577424
Irodai azonosító: 163701935
Telek: 23645 négyzetméter
Ingatlan állapota: Kitűnő
Jelleg: családi ház
Építőanyag: Tégla
Komfort fokozat: Dupla komfort
Bútorozott: Részben bútorozott

Így keressen családi házat négy egyszerű lépésben. Csupán 2 perc, kötelezettségek nélkül!

Szűkítse a családi házak
listáját
Válassza ki a megfelelő
családi házat
Írjon a hirdetőnek
Várjon a visszahívásra