Eladó családi ház Pécs 93 900 000 Ft

Leírás

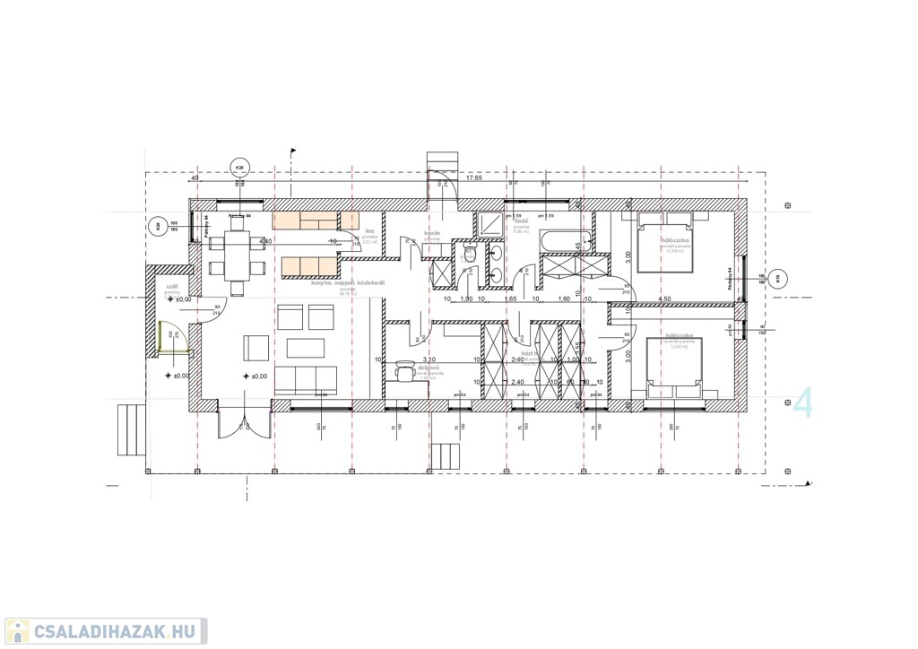
Pécsett a Balokány melett, csendes utcában, 1000m2-es telken, 2016-ban épült, 120m2-es, nappali-konyha+ 3 szobás ház eladó.
Az ingatlan 30-s porotherm téglából épült, a falak 10cm szigetelést kaptak.A háztartási helyiség szobának is megfelelő így akár 4 szobát is kaphatunk.
A tetőtér kialakítása úgy lett megtervezve, hogy könnyedén beépíthető legyen!
A nappliból nyíló 50m2-es teraszon medence is helyet kapott.
A fűtésért légkondicionáló és vegyes tüzelésű kazán padlófűtéssel és radiátorokkal biztosított.
A telken felszíni gépkocsibeálló, garázs, műhely is található.
A ház hivatalosan kereskedelmi és ipari célú ingatlan, épületgépészeti raktár, így cégeknek nagyon kedvező hitellel megvásárolható, de családoknak is tökéletes választás elhelyezkedése, kialakítása végett.

Családi ház részletei

Ár: 93 900 000 Ft
Méret: 120 négyzetméter
Azonosító: 11259198
Irodai azonosító: 303559
Telek: 1000 négyzetméter
Ingatlan állapota:
Jelleg: családi ház
Építőanyag: Tégla
Fűtés jellege: Központi
Komfort fokozat: Összkomfort
Egész szobák: 3
Fél szobák: 1

Egyéb jellemzők

  • Garázs
  • Terasz

Így keressen családi házat négy egyszerű lépésben. Csupán 2 perc, kötelezettségek nélkül!

Szűkítse a családi házak
listáját
Válassza ki a megfelelő
családi házat
Írjon a hirdetőnek
Várjon a visszahívásra