Eladó családi ház Pécs 129 900 000 Ft

Leírás

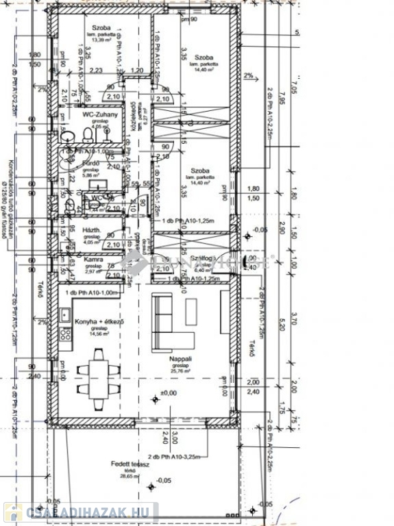
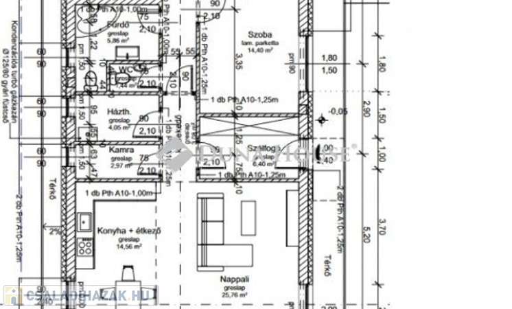
Pécs D-i részén a Postamester utcában eladó új építésű KÉSZ minimal stílusú családi ház.Az ingatlan lakótere 116nm-es, mely magába foglal egy tágas konyha-étkező-nappalit, 3hálószobát melyből az egyik saját fürdőszobával rendelkezik, továbbá egy külön fürdőt, mosdót és gépészeti helyiséget.A nappaliból nyílik a közel 30nm-es fedett terasz.Energetikája A+ - os. Fűtését turbógázkazán látja el, a tetőn napelem.A hűtésről és másodlagos fűtésről klímák gondoskodnak (4db.)A ház tájolása D-K-i, napos.Az ingatlan október végével-november elejével költözhető!

Családi ház részletei

Ár: 129 900 000 Ft
Méret: 145 négyzetméter
Azonosító: 11578870
Irodai azonosító: HZ042027-5081936
Cím: Pécsi eladó 145 nm-es ház
Telek: 786 négyzetméter
Ingatlan állapota: Épülő
Jelleg: családi ház
Építőanyag: Tégla
Fűtés jellege: Egyedi
Fűtés módja: Gáz
Kor: Új építésű
Szintek száma: Földszintes
Egész szobák: 4

Térkép


Így keressen családi házat négy egyszerű lépésben. Csupán 2 perc, kötelezettségek nélkül!

Szűkítse a családi házak
listáját
Válassza ki a megfelelő
családi házat
Írjon a hirdetőnek
Várjon a visszahívásra