Eladó családi ház Pécel 89 000 000 Ft

Leírás

Új építésű, kulcsrakész családi ház eladó Pécelen, a Kolozsvári utcában!

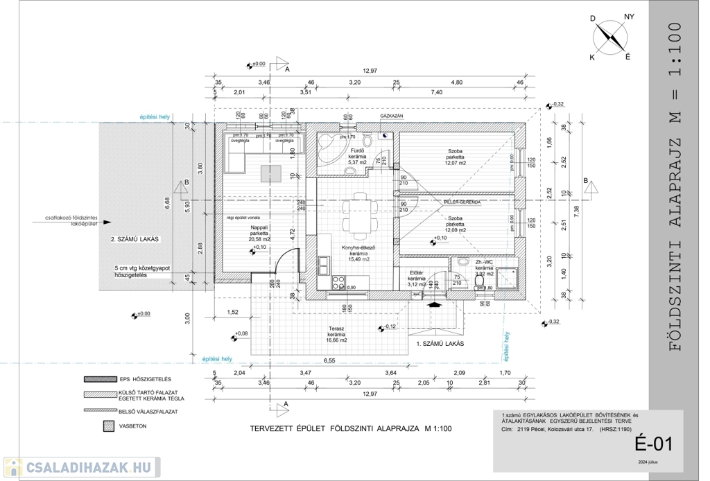
Pécel egyik csendes, rendezett mellékutcájában eladó egy új építésű, földszintes családi ház 330 m²-es kizárólagos használatú telekrésszel, amely egy meglévő épülethez kapcsolódva, bővítési engedéllyel épült modern műszaki tartalommal és minőségi anyaghasználattal.

A ház nettó 72,5 m² alapterületű, melyhez 16,66 m²-es terasz és 3,85 m²-es belépő is tartozik. A belső elosztása praktikus és átgondolt:
tágas nappali–konyha–étkező, két hálószoba, két fürdőszoba

A 30 cm Porotherm téglafal és a 15 cm EPS homlokzati hőszigetelés kiváló hőmegtartást biztosít. A vízszintes fa födémen 30 cm ásványgyapot szigetelés, a padlóban 10 cm lépésálló hőszigetelés található.
A 3 rétegű üvegezésű, hőszigetelt nyílászárók között toló teraszajtó, valamint alumínium, hőszigetelt elektromos redőnyök és szúnyoghálók is beépítésre kerültek.

A fűtésről kondenzációs gázkazán gondoskodik padlófűtéssel, a kellemes hőmérsékletet hűtő-fűtő klíma egészíti ki.
A térkövezett járda és autóbeálló, elektromos kapu, valamint a modern, letisztult kerítés tovább emeli a ház kényelmét és esztétikáját.

Az ingatlan kulcsrakészen kerül átadásra 2 hónapon belül, a vevő által választható belső tartalommal:

hidegburkolat 8.000 Ft/m²-ig,

melegburkolat 5.000 Ft/m²-ig,

csaptelepek 15.000 Ft/db-ig,

fürdőkád 40.000 Ft-ig,

beltéri ajtók 60.000 Ft/db-ig.

Ez a ház ideális választás mindazoknak, akik modern, energiatakarékos otthont keresnek nyugodt környezetben, mégis közel Budapesthez.

INGYENES hitel tanácsadás, CSOK Plusz ügyintézés!
BANKFÜGGETLEN hitelcentrumunk az összes elérhető bank és hitelintézet ajánlatát versenyezteti az Ön kedvéért, ráadásul DÍJMENTESEN.

- Egyedi, bankfiókban nem elérhető kamat- és díjkedvezmények
- Hitelképesség vizsgálat
- Idő, energia és pénz megtakarítás
- Teljes hivatali ügyintézés

Amennyiben hirdetésem felkeltette az érdeklődését vagy egyéb információra van szüksége hívjon bizalommal!

Családi ház részletei

Ár: 89 000 000 Ft
Méret: 83 négyzetméter
Azonosító: 11578711
Irodai azonosító: 389500
Cím: Kolozsvári utca
Telek: 330 négyzetméter
Ingatlan állapota: Kitűnő
Jelleg: családi ház
Építőanyag: Tégla
Fűtés jellege: Cirkó
Fűtés módja: Gáz
Komfort fokozat: Összkomfort
Kor: Új építésű
Szintek száma: Földszintes
Egész szobák: 3

Egyéb jellemzők

  • Csatorna
  • Garázs
  • Pince
  • Terasz

Térkép


Így keressen családi házat négy egyszerű lépésben. Csupán 2 perc, kötelezettségek nélkül!

Szűkítse a családi házak
listáját
Válassza ki a megfelelő
családi házat
Írjon a hirdetőnek
Várjon a visszahívásra