Eladó családi ház Pécel, Csatáridűlő, 86 000 000 Ft

Leírás

PÉCEL, CSATÁRIDŰLŐN MODERN KIVÁLÓ MINŐSÉGBEN ÉPÜLŐ IKERHÁZAK ELADÓK! CSOK PLUSZ ÉS HITEL IGÉNYELHETŐ!
Kulcsrakész állapot: 2024.12.
A jobb oldali ikerfél elkelt!
Elhelyezkedés:Pécel, CsatáridűlőÚjszerű, modern aszfaltos utca, barátságos környezet
Ingatlan részletei:
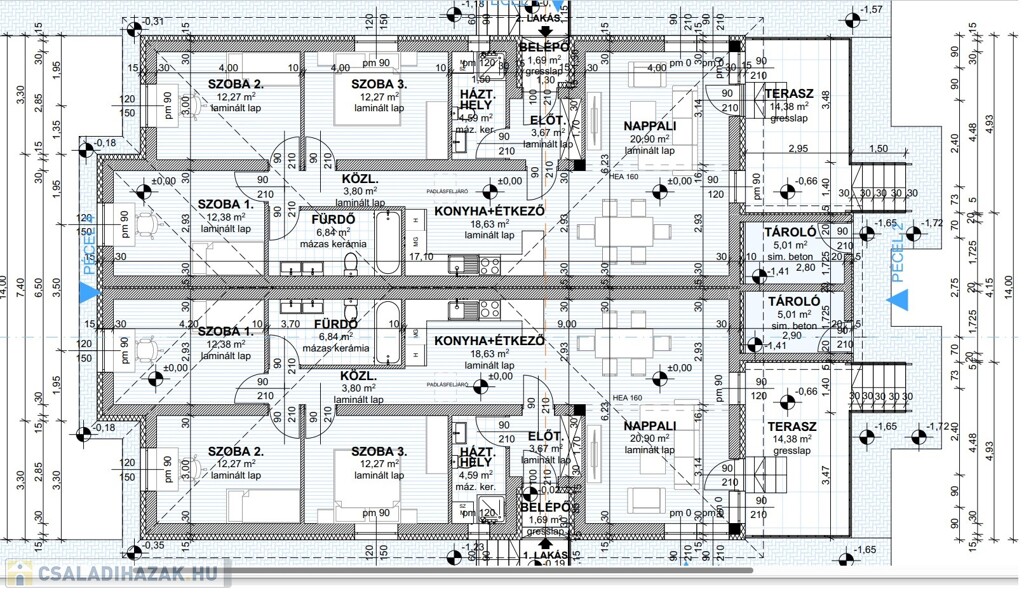
Teljes telek: 900 nm
Az ikerházak telek része: 450-450 nm (nincs áthallás, a dupla 30 cm fal és közte 5 cm ásványgyapot szigetelés biztosítja a hangszigetelést)
Alapterület: 102 nm
Az ikerházak felosztása:
SZOBA 1. laminált lap 12,38 m2
SZOBA 2. laminált lap 12,27 m2
SZOBA 3. laminált lap 12,27 m2
NAPPALI laminált lap 20,90 m2
KONYHA+ÉTKEZŐ laminált lap 18,63 m2
FÜRDŐ mázas kerámia 6,84 m2
HÁZTARTÁSI HELYISÉG mázas kerámia 4,59 m2
KÖZLEKEDŐ laminált lap 3,80 m2
ELŐTÉR laminált lap 3,67 m2
BELÉPŐ greslap 1,69 m2
TÁROLÓ simított beton 5,01 m2
Hasznos alapterület összesen: 102,04 m2
TERASZ greslap 14,38 m2
Fűtött alapterület: 95,34 m2
Műszaki jellemzők:
Energetikai tanúsítvány: BB
Hőszivattyús rendszerű padlófűtés minden helyiségben
Hideg burkolat: 5.000 Ft-ig választható
Meleg burkolat: 3.000 Ft-ig választható
Szerelvények (szaniterek): 200.000 Ft-ig választhatók
Beltéri ajtók: 40.000 Ft-ig választhatókKiegészítők és Extrák:Riasztó és elektromos kapunyitó kiállások előkészítése az árban foglaltatik
Kerítés zsalukő pillérekkel és festett deszka elemekke
lFalazat: POROTHERM 30 N+F vagy hasonló műszaki tartalmú kézi falazóblokk + 15 cm EPS hőszigetelés
Padlástér: 15 cm vastag hőszigetelés, deszkázott, pakolható
Nyílászárók: 3 rétegű üvegezéssel ellátott, hőszigetelt műanyag ablakok, redőnnyel, szúnyoghálóval.
Az ikerházak modern kivitelezése és kiváló műszaki állapota lehetővé teszi, hogy mindkét otthon kényelmes és energiatakarékos legyen. Ideális választás családoknak vagy befektetőknek. Ha további információra van szükséged vagy szeretnéd megtekinteni ezeket az ingatlanokat, kérlek, lépj kapcsolatba velünk! Referenciákkal rendelkező kivitelező!
Hitel esetén díjmentes ügyintézés. Összes bank ajánlata egy helyen, kedvezményekkel. Nem adta el ingatlanát? NE ADJA EL PIACI ÁR ALATT! Segítünk. Minden ügyfelünknek ingyenes felmérjük az otthonát! Hívjon vagy írjon, a további információkért.

Családi ház részletei

Ár: 86 000 000 Ft
Méret: 102 négyzetméter
Azonosító: 11433837
Városrész: Csatáridűlő
Telek: 450 négyzetméter
Ingatlan állapota: Épülő
Jelleg: családi ház
Építőanyag: Tégla
Fűtés jellege: Hőszivattyú
Fűtés módja: Hőszivattyú
Komfort fokozat: Dupla komfort
Kor: Új építésű
Elhelyezkedés: Panorámás
Szintek száma: Földszintes
Bútorozott: Nem bútorozott
Egész szobák: 4
Nappalik: 1

Egyéb jellemzők

  • Csatorna
  • Garázs
  • Melléképület
  • Padlás
  • Terasz

Térkép


Így keressen családi házat négy egyszerű lépésben. Csupán 2 perc, kötelezettségek nélkül!

Szűkítse a családi házak
listáját
Válassza ki a megfelelő
családi házat
Írjon a hirdetőnek
Várjon a visszahívásra