Eladó családi ház Pécel 149 900 000 Ft

Leírás

PÉCEL EGYIK LEGSZEBB RÉSZÉN, CSATÁRIDŰLŐN KULCSRAKÉSZ, ÚJ ÉPÍTÉSŰ ÖNÁLLÓ CSALÁDI HÁZ ELADÓ, REFERENCIÁVAL RENDELKEZŐ KIVITELEZŐTŐL !

Álmai otthona egy csendes, családias övezetben várja Önt!
Pécel kedvelt részén, Csatáridűlőn, szép házak szomszédságában, önálló, körbejárható családi ház eladó, kulcsrakész állapotban, nagy 700 nm-es kerttel.
Várható átadás: 2025 év vége.

Főbb paraméterek:
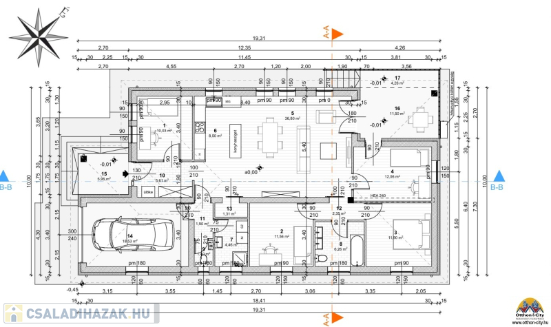
Lakóterület: 150,12 m²
Telek**: 700 m²
Szobák száma: 4 hálószoba + nappali
Fürdőszobák: 2 (1 fürdő+WC, 1 külön WC)
Garázs: saját, tárolóval
Vételár kulcsrakész állapotra vonatkozik!

Kiemelt műszaki jellemzők:

Masszív szerkezet
Zsalukő lábazat, vasalt aljzatbeton, Porotherm falazóelemek + 15 cm homlokzati hőszigetelés

Kiváló szigetelés
30 cm mennyezeti, 15 cm homlokzati és lábazati, valamint 10 cm aljzatszigetelés

Tetőszerkezet
Kontyolt nyeregtető fa szerkezettel, antracit színű betoncserép fedéssel

Nyílászárók
3 rétegű hőszigetelt műanyag ablakok, redőnnyel és szúnyoghálóval, minőségi belső ajtók

Fűtés és hűtés
Hajdu HPAW-10 hőszivattyús rendszer padlófűtéssel – modern, energiatakarékos megoldás

Belső burkolatok
5000 Ft/m²-ig hideg-, 3000 Ft/m²-ig meleg burkolatok az árban
Laminált padló, mázas kerámialap, greslap burkolatok, minőségi szaniterek

Extra kényelmi elemek
Riasztó- és kaputelefon-előkészítés, elektromos kapuhoz kiépített csövezés
Járda és utcafronti kerítés kiépítve

Helyiségek:
4 hálószoba
Tágas amerikai konyhás nappali
Kamra
Háztartási helyiség
Fürdő + külön WC
Előtér, közlekedők
Fedett terasz
Garázs + tároló

További extrák:
Ingyenes hitelügyintézés
Kedvezményes ügyvédi háttér
Ingyenes értékbecslés
Segítünk jelenlegi ingatlanának eladásában is

Modern, energiatakarékos, minőségi kivitelezés – hosszú távra tervezve!
Az építkezés a legújabb energetikai és szerkezeti szabványok szerint történik, szem előtt tartva a fenntarthatóságot, időtállóságot és az otthon kényelmét.

Családi ház részletei

Ár: 149 900 000 Ft
Méret: 150 négyzetméter
Azonosító: 11538572
Telek: 700 négyzetméter
Ingatlan állapota: Kitűnő
Jelleg: családi ház
Építőanyag: Kérdezzen rá a hirdetőtől »
Szintek száma: 1 szint
Egész szobák: 5

Egyéb jellemzők

  • Csatorna
  • Garázs
  • Kábel TV
  • Melléképület
  • Parketta
  • Pince
  • Terasz

Így keressen családi házat négy egyszerű lépésben. Csupán 2 perc, kötelezettségek nélkül!

Szűkítse a családi házak
listáját
Válassza ki a megfelelő
családi házat
Írjon a hirdetőnek
Várjon a visszahívásra