Eladó családi ház Pécel 110 000 000 Ft

Leírás

CSAK NÁLUNK!

Pécel, kedvelt Levendulás lakóparkjában, eladó egy nettó 98,8 m², bruttó 107,81 m² alapterületű, 2 lakásos lakóépület 2-es lakása. Jogilag lakásnak számít.

A lakásokat, főként aszfaltos úton lehet megközelíteni. .

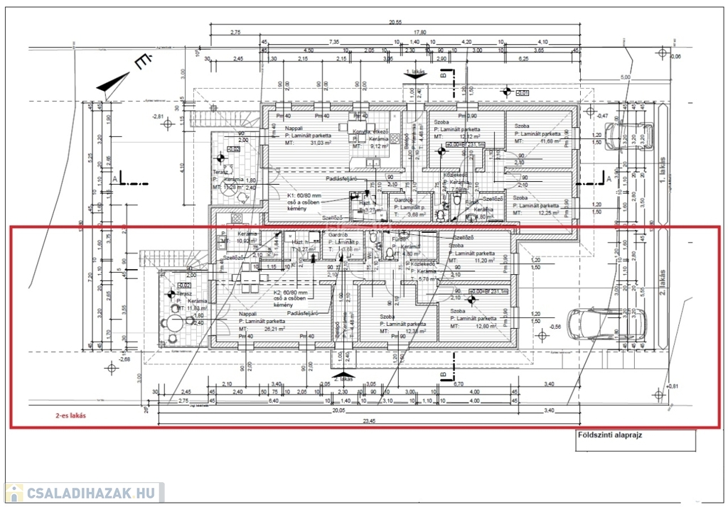
A 98,8 m²-es lakótérben 3 szoba + nappali biztosít kényelmes életteret a jövőbeli lakóknak. A házhoz tartozik egy ~508 m²-es saját kert, ami tökéletes helyszín családi és baráti összejövetelekhez. A 11,83 m²-es teraszról (alatta 9,01 m²-es tároló) gyönyörű kilátás nyílik a környező tájra.


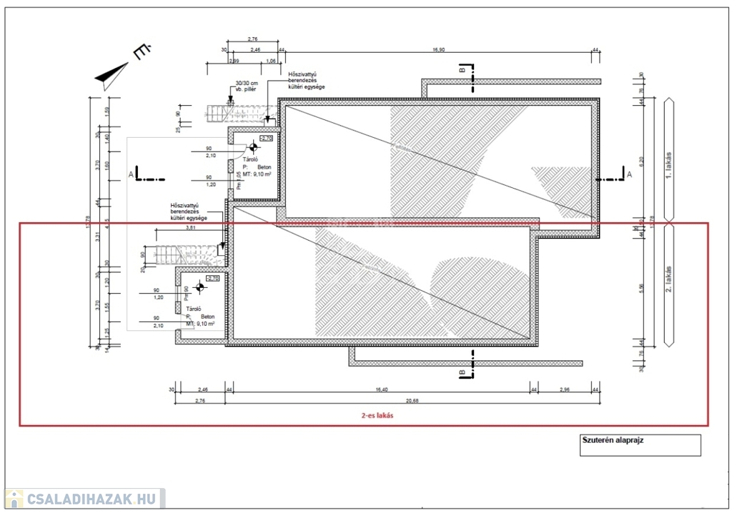
A lakások szimmetrikus belső elrendezéssel kerültek megtervezésre, földszintes kialakítással, illetve részleges szuterén beépítéssel. A lakások az oldalkerti homlokzatok közepén lévő bejáratokon közelíthetők meg.

Rövid műszaki tartalom:

- Az épület földszinti és emeleti külső határoló falai 30 cm vastag Porotherm 30 X-Therm falazó blokkból, úgynevezett klíma téglából készülnek.

- A külső körítő falak külső oldalai 15 cm grafitos EPS (H 80) hab hőszigetelő vakolatot kapnak.

- A tetőtér hőszigetelése, fújt hőszigetelő hab, kb. 45 cm vastag kőzetgyapotnak fele meg.

- A válaszfalak 10 N+F Porotherm válaszfal lapokból falazott 10 cm vastag falszerkezetek.

- A külső nyílászárók, fehér színben gyártott műanyag 3 rétegű, hőszigetelő üvegezéssel ellátottak (U= 0,9 W/m2K) ablakok lesznek.

- A meleg víz ellátást és a fűtést gáz kondenzációs kazán biztosítja majd, padlófűtés hűleadással.

Az alternatív fűtésről és hűtésről, KLÍMA fog gondoskodni.

A tervezet áram kapacitás 1 x 32 A lesz.

Most még, kb. májusig Felár ellenében H-tarifás óra kérhető!

Helységlista:

- Földszint:
- 4,48 m² belépő ,
- 5,78 m² közlekedő,
- 12,38 m² szoba I.,
- 12,80 m² szoba II. ,
- 11,20 m² szoba III.,
- 4,80 m² fürdő,
- 1,44 m² WC,
- 3,68 m² gardrób,
- 3,27 m² háztartási helység,
- 26,21 m² nappali,
- 10,92 m² konyha -étkező,
- 1,84 m² kamra
- -----------------
98,8 m²

Nyitott terasz 11,83 m²

A terasz alatt szuterén tároló 9,01 m² lesz.


A kert durva tereprendezéssel lesz átadva.

Műszaki tartalom:

-Hideg burkolat 6.000 Ft/m²
-Meleg burkolat 5.000 Ft/m²
-Szaniterek 200.000 Ft-ig
-Beltéri ajtók 60.000 Ft, kilinccsel együtt /db


Magasabb árú építőanyag választás esetén a különbözetet a Vevő finanszírozza.

Az ár tartalmazza még:

- H-tarifa óra előkészítését, az órát és a dobozt nem,
- Kapumozgató elektronika előkészítését,
- Riasztó előkészítését.

A berendezések kiépítése opcionálisan, plusz pénzért megrendelhetők.

A belső VÁLASZFALAK, MÉG MÓDOSÍTHATÓK!


A Kivitelező a műszaki tartalom változtatás jogát fenntartja, az előírt energetikai előírások figyelembe vételével.

Kezdő befizetés 10% foglaló.

A tervezett kezdés 2026 nyara ( a villanyóra függvényében!
A tervezett átadás 1 év (2027 ősze. villanyóra függvényében!


A Cég számos referenciával rendelkezik. Komoly érdeklődés esetén szívesen mutatunk referenciát!

Ne hagyja ki ezt a lehetőséget, legyen Ön az új ikerház tulajdonosa Pécelen!


JÖJJÖN el, NÉZZE meg, SZERESSEN bele!


A GV HitelCentrum, KÖTELEZETTSÉG MENTESEN és DÍJMENTESEN, versenyezteti Önért a bankok hitelajánlatait. Ismerje meg a vissza nem térítendő állami támogatásokat!

* Egyedi, bankfiókban nem elérhető kamat- és díjkedvezmények.
* Ingyenes Hitelképesség vizsgálat.
* Idő, energia és pénz megtakarítás.
* Teljes hivatali ügyintézés.
* Babaváró.
* CSOK+
* Hitel.
* Megtakarítás,
* és EGYÉB BANKI tranzakcióban segítségére lehetünk!

• Igény esetén, ÜGYVÉDI segítséget nyújtunk, MEGFIZETHETŐ áron!


Ha az ingatlannal kapcsolatban bővebb felvilágosításra lenne szüksége, hívjon bizalommal, állok rendelkezésére!

F.M.

Családi ház részletei

Ár: 110 000 000 Ft
Méret: 98 négyzetméter
Azonosító: 11611601
Irodai azonosító: 385231
Cím: Pécel, új építésű ikerfél -2 lakás
Telek: 508 négyzetméter
Ingatlan állapota: Épülő
Jelleg: ikerház
Építőanyag: Tégla
Fűtés jellege: Cirkó
Fűtés módja: Gáz
Komfort fokozat: Összkomfort
Kor: Új építésű
Szintek száma: 1 szint
Egész szobák: 3
Fél szobák: 1

Egyéb jellemzők

  • Csatorna
  • Garázs
  • Pince
  • Terasz

Térkép


Így keressen családi házat négy egyszerű lépésben. Csupán 2 perc, kötelezettségek nélkül!

Szűkítse a családi házak
listáját
Válassza ki a megfelelő
családi házat
Írjon a hirdetőnek
Várjon a visszahívásra