Eladó családi ház Pannonhalma 149 000 000 Ft

Leírás

Pannonhalma, központi, csendes utcájában, 470 m2-es telekrészen elhelyezkedő, új építésű 162 m2-es, nappali plusz 3 szoba elrendezésű lakóház 13 m2-es terasszal, 23 m2-es garázzsal eladó.
Emeltszintű fűtéskész ár: 149 000 000,-Ft
Érd.: 06-20/9-966-669
Csörnyei Tamás Okleveles ingatlanszakértő / MSc in Real Estate INGATLAN 4 YOU Kft.

Az eladásra kínált lakóház Pannonhalma központi, de kifejezetten csendes részén helyezkedik el, lakóházas környezetben. Minden ami a hétköznapi élethez szükséges séta távolságra megtalálható. Ezenkívül, ha valaki a természetben szeretne kirándulni, szintén rövid sétával eléri azt.
Csendes utcában, modern megoldásokkal, prémium minőségben kivitelezett otthon várja első lakóit Pannonhalma szívéhez közel.
A kulcsrakész, 185 m²-es, dupla komfortos családi ház, amely egy 470,98 m²-es térköves, illetve füvesített, fásított telken helyezkedik el. A beruházás során minden részletet gondosan megtervezésre és magas színvonalon került kivitelezésre.
Ár: 149 millió Ft
Azonnal költözhető – bútorozott, gépesített konyhával
Főbb jellemzők számokban:
• 470,98 m² telek
• 162,21 m² lakótér
• 23,6 m² garázs elektromos kapuval +2 kocsibeálló
• 3 hálószoba + nappali + társalgó, 2 fürdőszoba, 2 külön wc
• 20 cm hőszigetelés a homlokzaton
• 5 ponton záródó egyedi fóliás műanyag ajtó
• 3 rétegű hőszigetelt műanyag ablakok

Az ingatlan paraméterei:
• teljes körű kert kialakítás
• a földszinten nappali, konyha + étkező, szülői hálószoba + fürdőszoba, külön wc, gépészeti helyiség, tárolóhelyiség került kialakításra
• az emeleten társalgó + 2 szoba, fürdőszoba, külön wc található
• egyedi konyha prémium minőségben
• beépített szekrény a közlekedőben, illetve a lépcsőházban
• modern fürdőszobák
• garázs közvetlen lakás- és kertkapcsolattal
• hőszivattyús mennyezeti hűtés és padlófűtés
• törölközőszárítós radiátor a fürdőszobákban
• Triál klíma berendezés
• egyedi színű műanyag nyílászáró
• külső árnyékolás elektromosan működtethető zsaluziával
• Hörmann motoros garázskapu
• Elektromos mozgatású kapubejáró
• Kiépített vagyonvédelem
• Szellőzőrendszer előkészítés
• Vízkezelő előkészítés

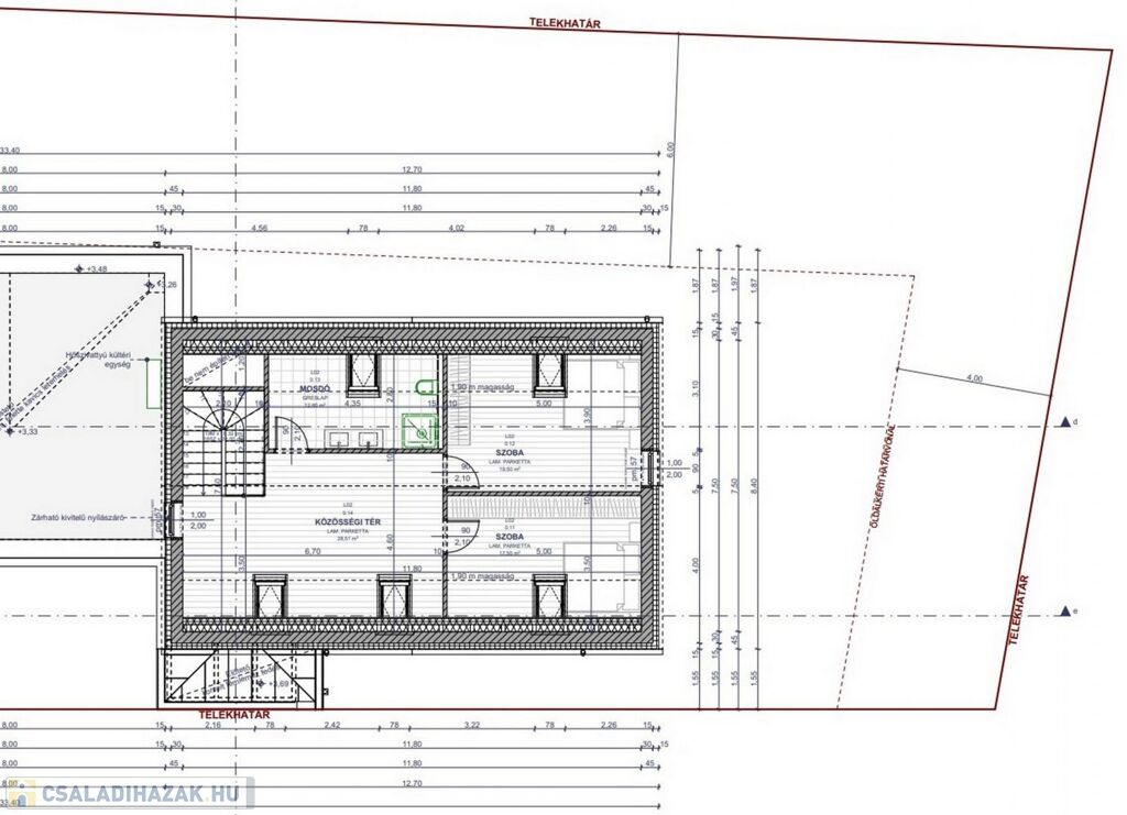
Helyiség lista

Helyiséglista:
Nappali földszint 22.14 m2 Járólap
Konyha, étkező 18.30 m2 Járólap
Szülői hálószoba 15.60 m2 Laminált padló
Fürdőszoba földszint 2.52 m2 Járólap
Közlekedő 5.57 m2 Járólap
Kazánház 5.94 m2 Járólap
Wc földszint 2.24 m2 Járólap
Szélfogó 6.12 m2 Járólap
Garázs 23.60 m2 Járólap
Lépcsőház 5.67 m2 Járólap
Szoba emelet 17.50 m2 Laminált padló
Szoba emelet 19.50 m2 Laminált padló
Nappali emelet 28,51 m2 Laminált padló
Fürdőszoba emelet 9,24 m2 Járólap
Wc emelet 3,36 m2 Járólap


Pannonhalma, festői természeti adottságokkal rendelkezik, emellett a több mint 1000 éves Apátság hagyománya, kultúrája, gasztronómiája ez idáig is vonzotta mind a turistákat, mind azokat, akik ebben az ideális lakó környezetben kívántak letelepedni, Győrtől 20 km-re. Ahol minden adott egy nyugodt élethez, egy kisvároshoz méltó infrastruktúrával (bölcsőde, óvoda, iskola, uszoda, okmányiroda, orvosi ellátás (beteg ellátó központ), bevásárlási lehetőségek, éttermek cukrászdák, kávézók, stb.).
Pannonhalma adottságai és a jövőbeni fejlesztések óriási lökést adnak a településnek. Aminek eredményeként az életkörülmények javulnak, az ingatlan kereslet/árak növekednek. Pannonhalma jó befektetés!

PANNONHALMA város, észak-nyugat Magyarországon, Győr-Moson-Sopronban, a pannonhalmi kistérségben helyezkedik el, aminek a település a regionális központja. A kisváros Győr vonzáskörzetébe tartozik. A térséget fejlett gazdaság, alacsony munkanélküliség, magas átlag jövedelem jellemezi.

Családi ház részletei

Ár: 149 000 000 Ft
Méret: 185 négyzetméter
Azonosító: 11572091
Irodai azonosító: 122578
Cím: Pannonhalma
Telek: 470 négyzetméter
Ingatlan állapota: Átlagos
Jelleg: családi ház
Építőanyag: Kérdezzen rá a hirdetőtől »
Fűtés jellege: Cirkó
Egész szobák: 4

Egyéb jellemzők

  • Terasz

Így keressen családi házat négy egyszerű lépésben. Csupán 2 perc, kötelezettségek nélkül!

Szűkítse a családi házak
listáját
Válassza ki a megfelelő
családi házat
Írjon a hirdetőnek
Várjon a visszahívásra