Eladó családi ház Paks 249 000 000 Ft

Leírás

Paks külterületén felújított kúria eladó.
A kúria az 1870-es években épült, 2022-ben nagyon magas minőségben és kiemelkedő műszaki tartalommal került felújításra.A kúriát meghatározza a szolid, elegáns, hivalkodástól mentes, naturális és neutrális design, mely számtalan rejtett értéket és műszaki bravúrt rejt.
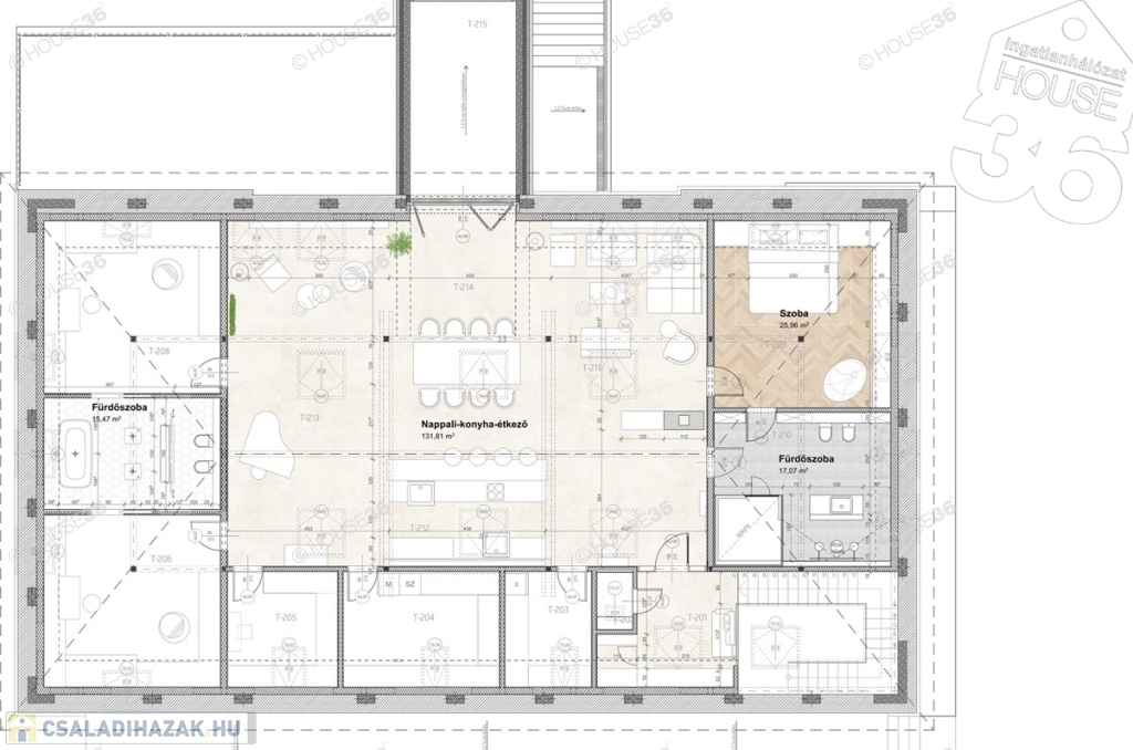
A rendkívül robosztus födém acél szerkezettel való megerősítését követően kialakításra került egy impozáns, első emeleten elhelyezkedő tágas luxus lakrész. Az elrendezés meghatározó központi elemét képezi a 130 négyzetméteres, legmagasabb pontján 7,5 méter belmagassággal rendelkező nappali. A helyiségbe belépve azonnal szembe ötlik a részben látszó gerendás tetőszerkezet és a központi helyet elfoglaló étkező asztal. Szemközt bal oldalon 30 négyzetméteres játszó sarok, vele átellenben felnőtteknek felhőtlen szórakozásra kialakított terület található.
Mellettünk egy teljesen felszerelt, 6 méteres, gépesített konyhapult található, mely zseniális elrendezésével mindent karnyújtásnyira kínál használója számára.
A nappaliban található zöld fal automata öntözésű, gondozás mentes növényzetet hoz életterünkbe.
Két darab átlagos nappali méretű fürdő, és ezekkel közvetlen kapcsolatban álló lakószobák foglalnak helyet az épület két oldalán.
A 25 négyzetméteres hálóból nyíló mosdó helyiségben egy előtétfal mögött dupla zuhanyzó és egy negyed óra alatt 105°C-ra is felfűthető finn szauna található.
Szemközt két méretes gyerekszoba, köztük közös, szintén dupla berendezéssel ellátott mosdó.
Természetesen a gardrób, a spájz, a vendég WC, tároló helyiség és egy további lakószoba sem maradhat el.
Mindenhol jellemző az elegáns luxus igazi ismérve, a minőségi és valódi anyaghasználat.
A lakótér padlóburkolata valódi, luxus kategóriás kőris.
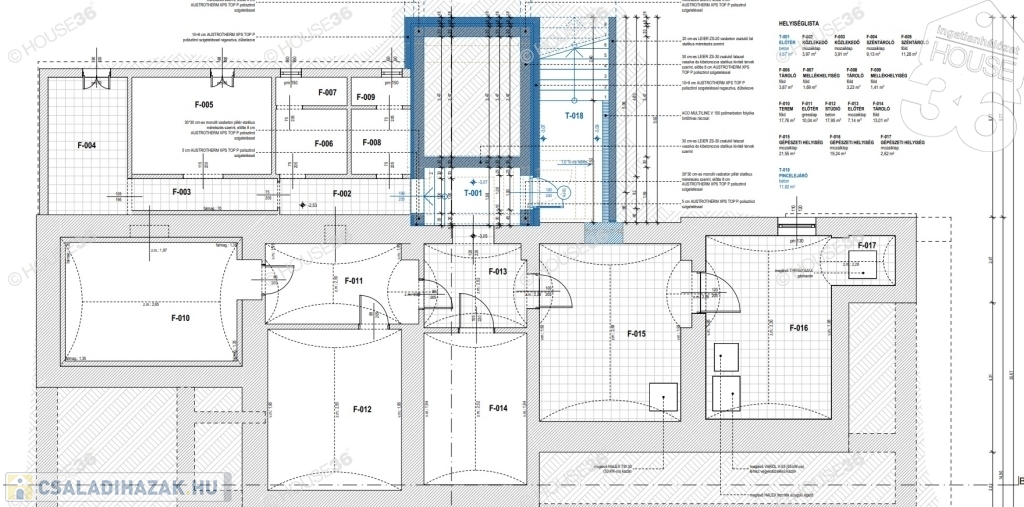
A földszinten újabb, közel 300 négyzetméternyi, jelenleg felújítás elejénél helyiségek tér tárulnak elénk.
Az iroda legfrissebb, aktuális kínálatát a HOUSE36 saját weboldalán találja!

Családi ház részletei

Ár: 249 000 000 Ft
Méret: 300 négyzetméter
Azonosító: 11601680
Irodai azonosító: 3619367-4873676
Telek: 8991 négyzetméter
Ingatlan állapota: Kitűnő
Jelleg: kúria
Építőanyag: Tégla
Fűtés jellege: Geotermikus
Fűtés módja: Villany
Kor: 50 évesnél régebbi
Szintek száma: Földszintes
Egész szobák: 4

Térkép


Így keressen családi házat négy egyszerű lépésben. Csupán 2 perc, kötelezettségek nélkül!

Szűkítse a családi házak
listáját
Válassza ki a megfelelő
családi házat
Írjon a hirdetőnek
Várjon a visszahívásra