Eladó családi ház Pácsony 27 000 000 Ft

Leírás

Eladó Pácsony központjában egy tágas, élhető családi ház, ahol minden adott egy nyugodtabb, praktikusabb élethez .
Ha olyan helyet keresel, ahol van tér létezni, de nem kell egy kastélyt fenntartani, akkor ez jó eséllyel betalál.

Alapok:
- Telek: 2054 m²
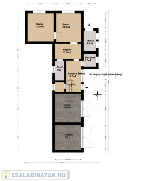
- Ház: nettó 146 m² (garázzsal/ tárolóval) Lakórész 92m²

A ház:
Jól átgondolt, élhető terek – nincs benne „minek ez ide?” helyiség.

- 2 nagyméretű szoba
- nappali
- tágas konyha-étkező
- fürdő WC-vel
- kamra
- előtér
- terasz
- tároló
- garázs

Itt nem kell oldalazva közlekedni. Van hely.

Műszaki:
- központi fűtés, vegyestüzeléssel
- 2021-ben tetőcsere és felújítás
- stabil, karbantartott állapot

A kert (ahol jön a csavar):
Gyümölcsfák, díszfák – és egy smaragdfa (császárfa) ültetvény.
Ez nem csak jól hangzik:
kitermelés után újra kihajt, nem kell újra telepíteni – és a fűtést is biztosítja.
Magyarul: a kert nem csak szép, hanem dolgozik is helyetted.

Elhelyezkedés:
- Vasvár: 5 km
- Zalaegerszeg: 20 km
A település központjában, mégis nyugodt környezetben.

Közösség:
Összetartó falu, ahol még köszönnek egymásnak – de nem állnak meg fél órára minden kapuban (csak ha szeretnéd).

Összefoglalva:
Ez egy olyan ház, ami nem akar többnek látszani, mint ami.
Cserébe viszont azt nagyon jól tudja.

Tér, kert, működő megoldások – és egy kis önfenntartás érzés.

Ha ez fontos, érdemes megnézni.
Kedvezményes lakástámogatások igénybe vehetők.
Teljes körű ügyintézés, bankfüggetlen hiteltanácsadás, energetikai és villamos biztonsági vizsgálatok szervezése,
ügyvéd ajánlás – ha kell, nem maradsz egyedül a papírmunkával.

Családi ház részletei

Ár: 27 000 000 Ft
Méret: 92 négyzetméter
Azonosító: 11613132
Telek: 2054 négyzetméter
Ingatlan állapota:
Jelleg: családi ház
Építőanyag: Kérdezzen rá a hirdetőtől »
Fűtés jellege: Egyéb
Egész szobák: 3

Egyéb jellemzők

  • Garázs
  • Kábel TV
  • Melléképület
  • Parketta
  • Pince
  • Terasz

Így keressen családi házat négy egyszerű lépésben. Csupán 2 perc, kötelezettségek nélkül!

Szűkítse a családi házak
listáját
Válassza ki a megfelelő
családi házat
Írjon a hirdetőnek
Várjon a visszahívásra