Eladó családi ház Orfű 115 000 000 Ft

Leírás

ELADÓ ÚJ ÉPÍTÉSŰ CSALÁDI HÁZ ORFŰN!

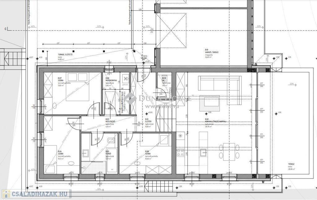
Orfű páratlan környezetében kínálunk Önnek megvételre két gyönyörű, örökpanorámás házat. A település kimondottan csendes részén, zöldövezetben helyezkedik el, 2 db külön-külön 140 m2-es családi ház , garázzsal, amely nyaralóként vagy lakóházként is egyaránt kitűnően használhatóak. ️

A Vadvirág utcában, lakóövezetben helyezkedik el, összközműves, gázfűtéses. A teljes telek terület 1054 m2, amely házanként megosztva 527-527 m2.

A családi házban 3 hálószoba, nappali, konyha, külön WC és fürdő található. A napfényes elhelyezkedésnek köszönhetően a lakás hangulatos és világos.

Pár perces sétával érhető el a Pécsi-tó.

Várható átadás 2024 nyara ‼️

Bővebb információt személyes találkozó alkalmával!

115000000 Ft
Keressenek Bizalommal!
Érdeklődni.: Orsolics Zsolt + 36(20)3770000

Referencia szám: HZ066286-NOK

Családi ház részletei

Ár: 115 000 000 Ft
Méret: 140 négyzetméter
Azonosító: 11593298
Irodai azonosító: HZ066286-4553051
Telek: 527 négyzetméter
Ingatlan állapota: Épülő
Jelleg: családi ház
Építőanyag: Tégla
Fűtés jellege: Cirkó
Fűtés módja: Gáz
Kor: Új építésű
Szintek száma: Földszintes
Egész szobák: 4

Térkép


Így keressen családi házat négy egyszerű lépésben. Csupán 2 perc, kötelezettségek nélkül!

Szűkítse a családi házak
listáját
Válassza ki a megfelelő
családi házat
Írjon a hirdetőnek
Várjon a visszahívásra