Eladó családi ház Őrbottyán 59 000 000 Ft

Leírás

1 hektáros birtok Őrbottyánban!

A telek teljesen körbekerített, csendes, zöld környezetben van.
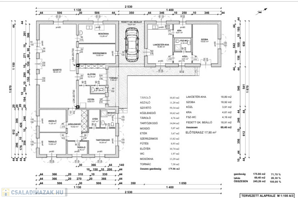
Az itt található építmény összesen 300 m²-es épület, jelenleg 30%-os készültségi fokon van - 260 m2 rész beton koszorúig megépítve, 60 m2 résznek a beton alapja van meg, a falakhoz szükséges tégla beleértve a válaszfalakat, a helyszínen vannak - , érvényes építési engedéllyel! De alakítható még saját igények szerint is.
Az épület anyaga 44 cm-es porotherm tégla.
A birtokon található fúrt kút, mely tökéletes vízellátást biztosít a földműveléshez és a mindennapi szükségletekhez, míg a 3x25 amperes villamosenergia ellátás megkönnyíti a fejlesztéseket.

A terület szántó/legelő besorolású, lovasmajor- tanya övezetben található, ami ökológiai szempontból is kedvező, és a helyi rendezési terv különböző tevékenységek folytatására ad lehetőséget.
Valamint, mivel nem erdő, a fák mennyisége szabadon szabályozható!

Az ingatlan méretének és tágas tereinek köszönhetően családi birtoknak is tökéletesen alkalmas.

A környéken ilyen birtokok ára kész állapotban 200-250 millió Ft!!!

Családi ház részletei

Ár: 59 000 000 Ft
Méret: 300 négyzetméter
Azonosító: 11538957
Irodai azonosító: 383032
Cím: Hosszúföldek útja
Telek: 10000 négyzetméter
Ingatlan állapota: Épülő
Jelleg: tanya
Építőanyag: Tégla
Fűtés jellege: Villany
Fűtés módja: Villany
Komfort fokozat: Összkomfort
Kor: 1-5 éves
Szintek száma: Földszintes
Egész szobák: 2

Egyéb jellemzők

  • Csatorna
  • Garázs
  • Pince
  • Terasz

Térkép


Így keressen családi házat négy egyszerű lépésben. Csupán 2 perc, kötelezettségek nélkül!

Szűkítse a családi házak
listáját
Válassza ki a megfelelő
családi házat
Írjon a hirdetőnek
Várjon a visszahívásra