Eladó családi ház Őrbottyán 125 000 000 Ft

Leírás

Eladásra kínálok Őrbottyán kiváló kertvárosias részén egy önálló családiházat, amely építése most kezdődik el.
Az amerikai konyhás nappalit 3 hálószoba egészíti ki.
Felosztása:
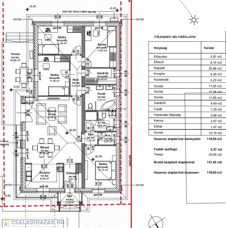
Előszoba 3,91 m2
Étkező 8,14 m2
Nappali 25,66 m2
Konyha 8,28 m2
Közlekedő 4,23 m2
Szoba 11,55 m2
Szoba 11,34 m2
Szoba 11,85 m2
Gardrób 4,49 m2
Fürdő 7,20 m2
Háztartási helyiség 5,66 m2
Kamra 2,07 m2
Előtér 1,47 m2
Szoba 12,15 m2
Összesen: 118,00 m2
Fedett szélfogó 2,57 m2
Nyitott terasz 20,65 m2
Hasznos alapterület összesen: 118,00 m2
BRUTTÓ BEÉPÍTETT ALAPTERÜLET: 151,65 m2
Gázcirkós fűtés, padlófűtéses hőleadókkal.
Műanyag három rétegű nyílászárók.
Saját autóbealló, nagy méretű telek!
Hívjon bizalommal!

Családi ház részletei

Ár: 125 000 000 Ft
Méret: 118 négyzetméter
Azonosító: 11593004
Irodai azonosító: 391699
Cím: Bajcsy Zsilinszky utca
Telek: 820 négyzetméter
Ingatlan állapota: Kitűnő
Jelleg: családi ház
Építőanyag: Tégla
Fűtés jellege: Cirkó
Fűtés módja: Gáz
Komfort fokozat: Összkomfort
Kor: Új építésű
Szintek száma: Földszintes
Egész szobák: 4

Egyéb jellemzők

  • Csatorna
  • Garázs
  • Pince
  • Terasz

Térkép


Így keressen családi házat négy egyszerű lépésben. Csupán 2 perc, kötelezettségek nélkül!

Szűkítse a családi házak
listáját
Válassza ki a megfelelő
családi házat
Írjon a hirdetőnek
Várjon a visszahívásra