Eladó családi ház Őrbottyán 105 500 000 Ft

Leírás

Eladásra kínálunk egy új építésű családi házat Őrbottyánban, a Kálvária dombon.
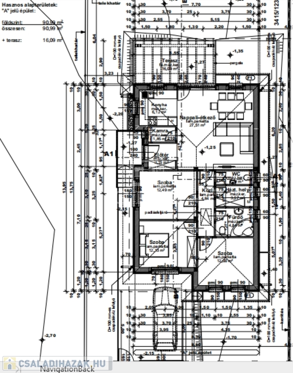
A ház alapterülete 91 négyzetméter, melyhez egy 360 négyzetméteres kert is tartozik.
A házban összesen 4 szoba található, ideális választás lehet nagyobb családok számára is.
A fűtésről modern hőszivattyús rendszer gondoskodik, ami környezetbarát és gazdaságos megoldás.
A 16 négyzetméteres teraszról gyönyörű kilátás nyílik a kertre, ami kertvárosi hangulatot áraszt.
A környék csendes és nyugodt, tökéletes hely a mindennapi pihenéshez és kikapcsolódáshoz.

Tervezett átadás legkésőbb 2026. augusztus
Hitel, CSOK Plusz, OSP felvehető, állunk rendelkezésére.
ID:391574

Családi ház részletei

Ár: 105 500 000 Ft
Méret: 91 négyzetméter
Azonosító: 11593361
Irodai azonosító: 391574
Cím: Kálvária domb
Telek: 360 négyzetméter
Ingatlan állapota: Kitűnő
Jelleg: családi ház
Építőanyag: Tégla
Fűtés jellege: Geotermikus
Fűtés módja: Hőszivattyú
Komfort fokozat: Dupla komfort
Kor: Új építésű
Szintek száma: Földszintes
Egész szobák: 4

Egyéb jellemzők

  • Csatorna
  • Garázs
  • Pince
  • Terasz

Térkép


Így keressen családi házat négy egyszerű lépésben. Csupán 2 perc, kötelezettségek nélkül!

Szűkítse a családi házak
listáját
Válassza ki a megfelelő
családi házat
Írjon a hirdetőnek
Várjon a visszahívásra