Eladó családi ház Onga 11 960 000 Ft

Leírás

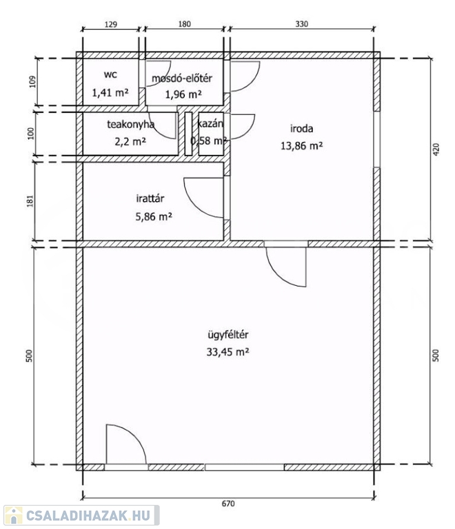
Onga Rákóczi u 22. szám alatti, többfelé célra alkalmas, 59.32 m²-es földhivatali nyilvántartásban "kivett irodaház, udvar"-ként nyilvántartott ingatlan, 161 m²-es telekkel eladó!
Ár: 11.960.000, -Ft+Áfa

Műszaki leírás:
Az épület 1960-as években, beton alapra épült, tégla falazattal, fa födémmel és fa szerkezetű nyeregtetővel, az épület fedése agyagcserép. A homlokzat kőporozott. A nyílászárók fa szerkezetűek, az épület fűtését kpi gázkazán biztosítja, radiátor hőleadókkal. Melegvízellátás villanybojler. A falak festettek és csempézettek, a padló burkolat kerámia lap.

Helyiséglista:
- Ügyféltér
- Iroda
- Irattár
- Kazán helyiség
- Mosdó-előtér
- WC:
- Teakonyha

Környezet:
Onga központjában, közintézmények, oktatási intézmények, kereskedelmi egységek, lakóingatlanok találhatók a környezetében.

Közlekedés:
Szilárd burkolatú úton közelíthető meg.
Tömegközlekedés megállója kb. 80 m

Családi ház részletei

Ár: 11 960 000 Ft+ÁFA
Méret: 59 négyzetméter
Azonosító: 11359278
Irodai azonosító: 109655
Cím: Onga
Telek: 161 négyzetméter
Ingatlan állapota:
Jelleg: családi ház
Építőanyag: Kérdezzen rá a hirdetőtől »
Fűtés jellege: Cirkó
Egész szobák: 3

Egyéb jellemzők

  • Terasz

Így keressen családi házat négy egyszerű lépésben. Csupán 2 perc, kötelezettségek nélkül!

Szűkítse a családi házak
listáját
Válassza ki a megfelelő
családi házat
Írjon a hirdetőnek
Várjon a visszahívásra