Eladó családi ház Ócsa 90 990 000 Ft

Leírás

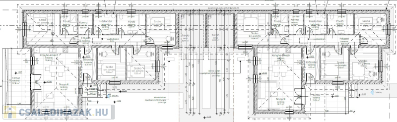
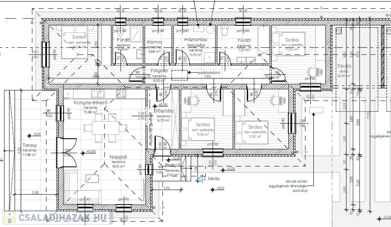
Ócsa szép, rendezett kertvárosi részén egyszintes, déli tájolású, 130 m2-es, nappali + 4 szobás, fedett gépkocsibeállókkal elválasztott ikerházi lakások, 2 fürdőszobával, nagy teraszokkal, 1079 m2-es, összközműves telken, magas műszaki tartalommal 2026 II. negyedévi átadással kulcsrakészen eladók. Az ingatlanokat csak irodánk kínálatában találja.

Az udvar felőli, szintén 130 m2-es, nappali + 4 szobás lakás 693 m2-es telekrésszel már elkelt.

9 KW-os Daikin levegő-víz hőszivattyú + meleg víz tartály biztosítja a padlófűtést és a meleg víz ellátást. A szobánkénti hűtést szintén Daikin invertes hűtő-fűtő klímák biztosítják. Rejtett redőnytokos homlokzati kialakítás a nyílászárók felett. Épített utcafronti kerítés, színterezett lemez határoló kerítések a telekhatárok mentén, elektromos kapuk, kaputelefon, riasztó. A belső kialakítás, festés, burkolás, szaniterek, belső ajtók még választhatók. Számos referencia munka megtekinthető.

Bankfüggetlen, díjmentes hiteltanácsadással is segítjük vásárlását Magyarország piacvezető hitelközvetítője által. Egyedi kamatkedvezmények. Hívjon bizalommal!

Családi ház részletei

Ár: 90 990 000 Ft
Méret: 130 négyzetméter
Azonosító: 11519519
Telek: 386 négyzetméter
Ingatlan állapota: Kitűnő
Jelleg: családi ház
Építőanyag: Kérdezzen rá a hirdetőtől »
Egész szobák: 5

Egyéb jellemzők

  • Csatorna
  • Garázs
  • Kábel TV
  • Melléképület
  • Parketta
  • Pince
  • Terasz

Így keressen családi házat négy egyszerű lépésben. Csupán 2 perc, kötelezettségek nélkül!

Szűkítse a családi házak
listáját
Válassza ki a megfelelő
családi házat
Írjon a hirdetőnek
Várjon a visszahívásra