Eladó családi ház Ócsa 110 000 000 Ft

Leírás


Ócsán 4 szobás, önálló családi ház eladó Kizárólag irodánk kínálatában!!! 

 

Ócsán kínálunk eladásra egy 2 szintes, önálló családi házat. 

 

Az ingatlan tehermentes,összkomfortos, hitelezhető, jogilag rendezett. 

A 719m2-es telek összközműves, rendezett, a kert öntözését fúrt kút is segíti. 

A parkolás szerelőaknás dupla garázzsal megoldott, mely 50m2-es. 

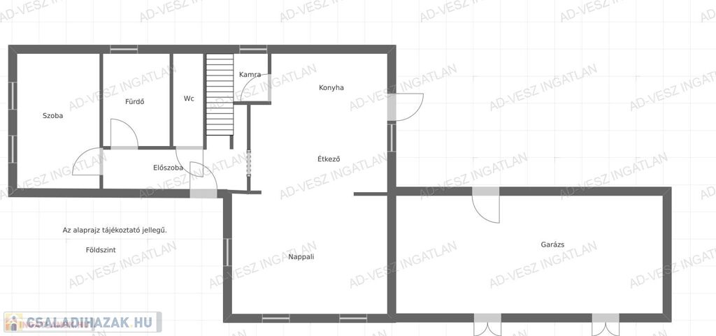
A ház földszintjén tágas, világos nappali, konyha étkezővel, egy hálószoba, wc, fürdő, kamra, előszoba, és közlekedő lett kialakítva. 

A tetőtérben további 2 hálószoba, fürdőszoba wc-vel, gardrób szoba, és közlekedő található. 

Az épület 2000-ben épült beton alapra, tégla falazattal, 10cm-es szigeteléssel, beton födémmel, zsindely fedéssel. 

2024-ben felújításra került, kicserélték a nyílászárókat redőnyös, szúnyoghálós, műanyag ablakokra, lecserélték a csaptelepeket, és korlátot építettek. 

A ház biztonságáról távfelügyeletes riasztó rendszer gondoskodik. 

 A fűtés kondenzációs gáz cirkóról radiátorokkal történik, de klímák is segítenek az optimális hőmérséklet elérében. 

Az ingatlan csendes utcában helyezkedik el, de a városközpont gyorsan megközelíthető, és a vonat, valamint a  buszmegálló is sétatávolságban van. 

Ócsa fejlődő kisváros Budapest közelében, mely őrzi a vidéki élet hangulatát. 

 

Ha egy kellemes kisvárosban képzeli el az életét, egy kényelmes, jó állapotú otthonban, hívjon!!! 

 

Irodánk ingyenes hiteltanácsadással, profi ügyvédi támogatással várja.

Ha a vásárláshoz még el kell adnia ingatlanát szívesen segítünk!

 

Bocskainé Krisztina

30-221-3336

Családi ház részletei

Ár: 110 000 000 Ft
Méret: 126 négyzetméter
Azonosító: 11586924
Irodai azonosító: 674400261
Telek: 719 négyzetméter
Ingatlan állapota:
Jelleg: családi ház
Építőanyag: Tégla
Fűtés jellege: Cirkó
Komfort fokozat: Összkomfort
Egész szobák: 4

Így keressen családi házat négy egyszerű lépésben. Csupán 2 perc, kötelezettségek nélkül!

Szűkítse a családi házak
listáját
Válassza ki a megfelelő
családi házat
Írjon a hirdetőnek
Várjon a visszahívásra