Eladó családi ház Nyúl 134 850 000 Ft

Leírás

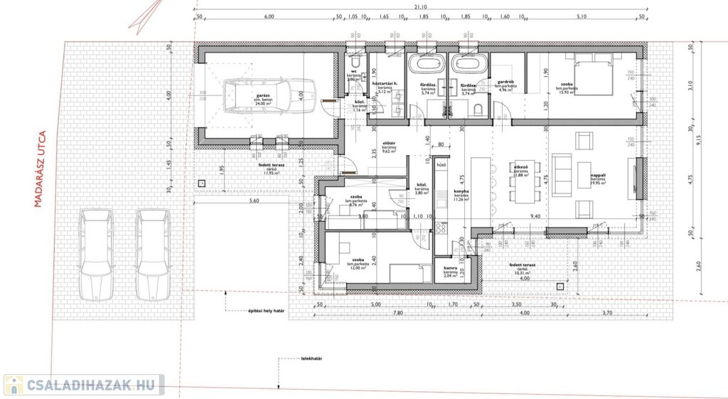
Nyúl hegyben, a közkedvelt Madarász utcában, kialakult lakókörnyezetben, 808 m2-es, körbekerített telken, ÚJ ÉPÍTÉSŰ, nettó 122,65 bruttó 169 m2-es, átgondolt tervezésű, kiváló alaprajzi elrendezésű, a mai kor igényes és exkluzív elvárásait maximálisan kielégítő, 3 szoba + nappalis, 2 fürdőszobás, PRÉMIUM minőségben kivitelezett, modern megjelenésű családi ház, 22,26 m2-es terasszal, 24 m2-es garázzsal eladó.
Emeltszintű szerkezetkész ár: 134 850 000 HUF (telek vételárát egyaránt tartalmazza)
Érd.: +36-20-36-44-444

A családi ház Nyúl természetközeli részén helyezkedik el, ahol az otthon kényelme a zöldövezeti nyugalommal párosul.
A családi ház tervezésekor legfőbb szempont volt egy környezettudatos, biztonságos lakókörnyezet megvalósítása, mely a mai kor igényeihez igazodva szolgálja a család minden tagjának kényelmét.

Műszaki tartalom, ami garantálja a Prémium minőséget:

- a korszerű építési technológiával épülő ingatlan Porotherm 30 N+F falazattal és 20 cm vastag hőszigeteléssel készül
- a modern lapos tető, mellyel a ház épül nem csupán esztétikailag látványos, hanem egy tudatosan kihasznált felület, a rajta elhelyezhető napelemes rendszernek, mely biztosítja az energiahatékony működést
- A+ energetikai besorolás - a ház fűtési rendszerét korszerű és környezetkímélő hőszivattyú szolgáltatja, mely az innovatív és környezettudatos gépészeti megoldások egyik kulcseleme
- a családi ház homlokzata külső díszítő burkolatot kap, amely nemcsak időtálló, hanem egyedi, karakteres megjelenést is biztosít az épületnek, mely eleganciát sugall, miközben harmonikusan illeszkedik a környezethez és emeli az ingatlan esztétikai értékét
- design és építészeti értéket tovább fokozzák a 3 rétegű, nagy üvegfelületekkel rendelkező, keskeny keretes, modern stílusú Internorm nyílászárók, melyek beépítésre kerülnek
- opcionális informatikai alapokon működő okos otthon rendszer, hogy az otthona egy applikáción keresztül automatizált és vezérelhető legyen, biztonságos, intelligens, környezetbarát megoldásokon keresztül

A családi ház kulcsrakész állapotban is megvásárolható.

• Ügyfeleink ingatlan vásárlását hozzáértő hitel tanácsadással, illetve teljes körű, ingyenes banki ügyintézéssel segítjük (támogatott és piaci lakáshitelek, falusi CSOK, babaváró hitel, személyi kölcsön vagy akár Lakástakarék Pénztár)
• Kiemelt banki kedvezményeket nyújtunk partner pénzintézeteink kínálatából (kedvezményes kamat, ingyenes előtörlesztés, egyedi akciók)
• Az összes bank ajánlata egy helyen !
• Kényelmi szolgáltatásként lakásbiztosítás, illetve hitelfedezeti biztosítás megkötésében is segítséget nyújtunk.

Családi ház részletei

Ár: 134 850 000 Ft
Méret: 145 négyzetméter
Azonosító: 11606408
Irodai azonosító: 125713
Cím: Nyúl
Ingatlan állapota: Átlagos
Jelleg: családi ház
Építőanyag: Kérdezzen rá a hirdetőtől »
Fűtés jellege: Cirkó
Egész szobák: 4

Egyéb jellemzők

  • Terasz

Így keressen családi házat négy egyszerű lépésben. Csupán 2 perc, kötelezettségek nélkül!

Szűkítse a családi házak
listáját
Válassza ki a megfelelő
családi házat
Írjon a hirdetőnek
Várjon a visszahívásra