Eladó családi ház Nyírtelek 66 000 000 Ft

Leírás

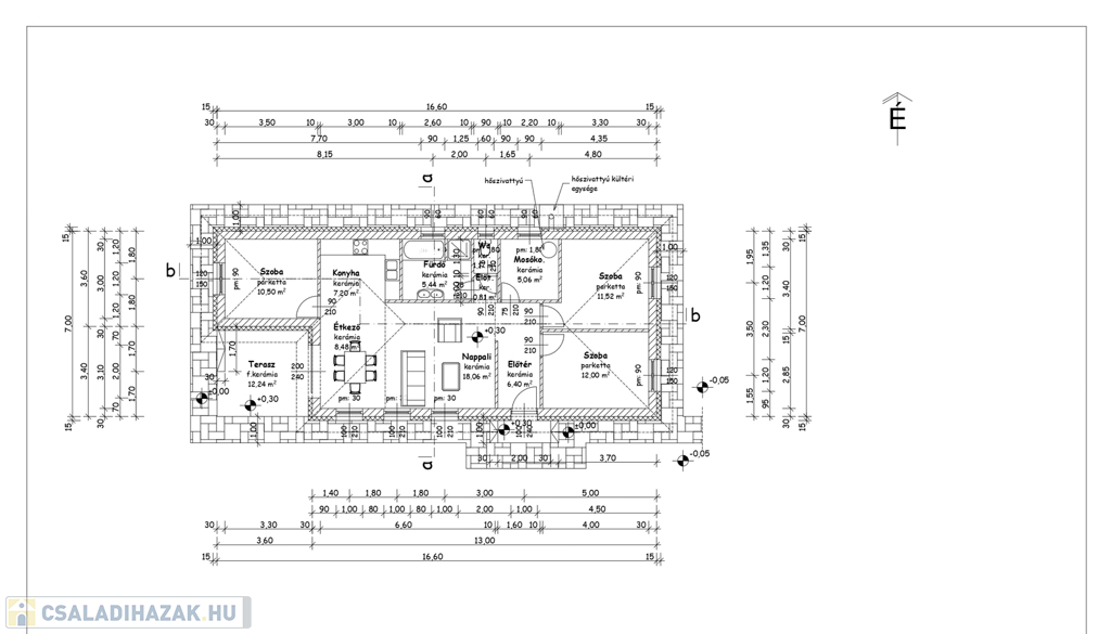
Nyírtelek központjához közel, ÚJ ÉPÍTÉSŰ 85 nm-es, 3 szoba + nappali teraszkapcsolattal külön fürdő és 2 wc, választható járólap és laminált parketta burkolattal, hőszivattyús padló fűtéssel, inverteres hűtő-fűtő klímával, 3 réteg üvegezésű műanyag nyílászárókkal, 15 cm-e shomlokzati, 30 cm -es födém és 10 cm-es lépésálló aljzat szigeteléssel, önálló családi ház, 1300 nm-es telken 2026 nyári átadással eladó.Az ingatlan azonosítója: 99819Érdeklődni: +36702560693 Az ingatlan azonosítója: 99819 Érdeklődni: +36702560693

Családi ház részletei

Ár: 66 000 000 Ft
Méret: 85 négyzetméter
Azonosító: 11602227
Irodai azonosító: 99819
Telek: 1300 négyzetméter
Ingatlan állapota: Épülő
Jelleg: családi ház
Építőanyag: Tégla
Fűtés jellege: Geotermikus
Kor: 1-5 éves
Egész szobák: 3

Így keressen családi házat négy egyszerű lépésben. Csupán 2 perc, kötelezettségek nélkül!

Szűkítse a családi házak
listáját
Válassza ki a megfelelő
családi házat
Írjon a hirdetőnek
Várjon a visszahívásra