Eladó családi ház Nyírtelek 66 000 000 Ft

Leírás

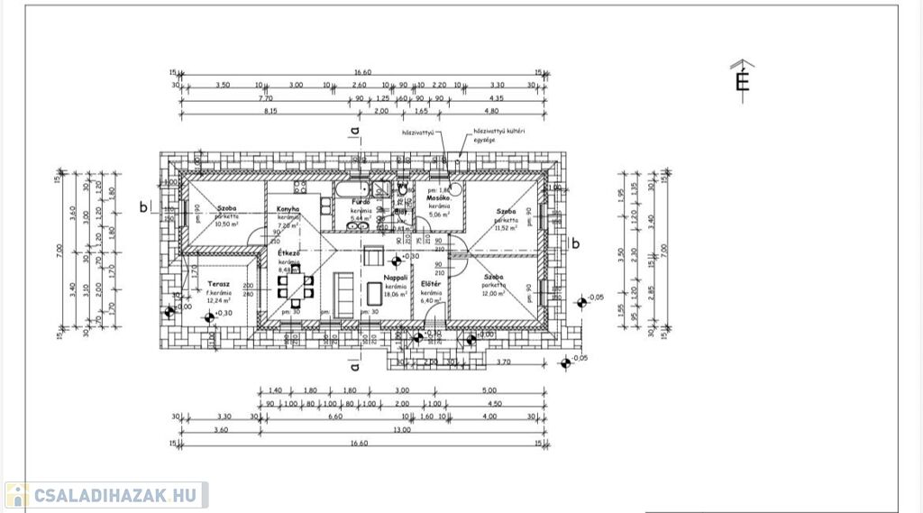
Nyírtelek központjához közel eladó egy 2026 nyarán átadásra kerülő, új építésű, 85 m2-es, önálló családi ház.
Alapadatok:

Helyszín: Nyírtelek, központ közeli, frekventált rész
Ingatlan típusa: Önálló családi ház
Alapterület: 85 m2
Telek terület: 1300 m2
Átadás várható ideje: 2026 nyár

Belső elrendezés:

Szobák: 3 különnyíló hálószoba
Nappali: Világos, közvetlen teraszkapcsolattal
Vizesblokkok: Fürdőszoba + 2 különálló mellékhelyiség
Design: Választható burkolatok (járólap és laminált parketta) – alakítsa saját ízlésére!

Műszaki tartalom:

Fűtési rendszer: Korszerű, energiatakarékos hőszivattyús padlófűtés
Szigetelés: 15 cm-es homlokzati-, 30 cm-es födém- és 10 cm-es aljzatszigetelés
Nyílászárók: 3 rétegű üvegezésű műanyag ablakok (kiváló hő- és hangszigetelés)
Értékállóság: Új építésű, modern technológiával készült otthon
Kényelem: Praktikus elosztás, tágas kert, kiváló megközelíthetőség

Ingatlanirodánk több éves tapasztalattal, megbízható háttérrel és teljes körű ügyintézéssel áll az Ön rendelkezésére.Amennyiben további információra lenne szüksége, vagy szeretné megtekinteni az ingatlant, várom hívását! Jöjjön és nézze meg!Az ingatlan azonosítója: 69871Érdeklődni: 06302669818 Az ingatlan azonosítója: 69871 Érdeklődni: 06302669818

Családi ház részletei

Ár: 66 000 000 Ft
Méret: 85 négyzetméter
Azonosító: 11602169
Irodai azonosító: 69871
Telek: 1300 négyzetméter
Ingatlan állapota: Épülő
Jelleg: családi ház
Építőanyag: Tégla
Fűtés jellege: Geotermikus
Kor: 1-5 éves
Egész szobák: 3

Így keressen családi házat négy egyszerű lépésben. Csupán 2 perc, kötelezettségek nélkül!

Szűkítse a családi házak
listáját
Válassza ki a megfelelő
családi házat
Írjon a hirdetőnek
Várjon a visszahívásra