Eladó családi ház Nyírtelek 66 000 000 Ft

Leírás

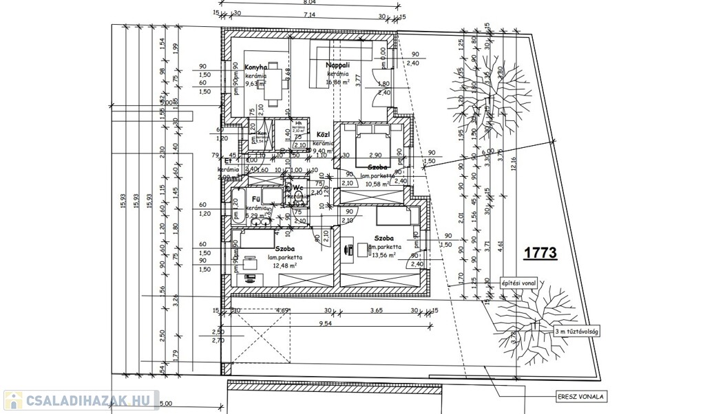
Nyírtelek frekventált részén eladó 83 m2-s, három különnyíló szobás,nappali+étkező+konyha egy térben, kamra, háztartási helység, fürdőszoba külön wc, 3 rétegű üveg Kömmerling műanyag nyílászárók, hőszivattyús fűtésrendszer padlófűtésre irányítva, 5 kw-s hűtő-fűtő klíma, utcáról szép kerítés, térkövezett bejárat, 30 m2-s gépkocsi beálló melynek automata garázskapuja van. Az ingatlan 380 m2-s telken fekszik, porotherm 30-s téglából épült, külsőleg 15 cm-s nikecel szigetelés, mennyezet fémvázra erősített tűzálló gipszkarton rajta párazáró fólia, fafödémes rajta 25 cm-s üveggyapot borítás a tető betoncseréppel fedett alatta a páraáteresztő fólia a belső falak gépi vakolással burkolva. A szaniterek a burkolat és a belső ajtók még kiválasztható. KÖLTÖZNI KB. KÉT HÓNAP MÚLVA! VEVŐK RÉSZÉRE A KÖZVETÍTÉS DÍJTALAN, HITEL IGÉNYLÉSBEN IS TUDOK SEGÍTENI!

Családi ház részletei

Ár: 66 000 000 Ft
Méret: 83 négyzetméter
Azonosító: 11593963
Irodai azonosító: 8162
Telek: 380 négyzetméter
Ingatlan állapota: Épülő
Jelleg: családi ház
Építőanyag: Tégla
Fűtés jellege: Hőszivattyú
Fűtés módja: Villany
Komfort fokozat: Összkomfort
Kor: Új építésű
Elhelyezkedés: Udvari
Szintek száma: Földszintes
Bútorozott: Nem bútorozott
Egész szobák: 2
Fél szobák: 1
Nappalik: 1

Egyéb jellemzők

  • Beépíthető tetőtér
  • Csatorna
  • Garázs
  • Kábel TV
  • Melléképület
  • Padlás
  • Parketta
  • Pince
  • Terasz

Így keressen családi házat négy egyszerű lépésben. Csupán 2 perc, kötelezettségek nélkül!

Szűkítse a családi házak
listáját
Válassza ki a megfelelő
családi házat
Írjon a hirdetőnek
Várjon a visszahívásra