Eladó családi ház Nyírpazony 76 950 000 Ft

Leírás

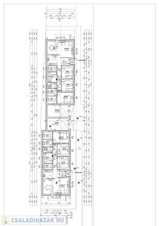
Nyírpazonyban ÚJ ÉPÍTÉSŰ 122 nm-es, 3 szoba + nappali konyha étkezővel teraszkapcsolattal, 2 fürdő és 2 wc-vel, háztartási helységgel és gardróbszobával, választható járólap és laminált parketta burkolattal, egyedi gáz Ariston kondenzációs gázkazánnal padló fűtéssel, 2 db inverteres klímával, 3 réteg üvegezésű Kömmerling 7 légkamrás műanyag nyílászárókkal, 30 Porotherm ragasztóhabos tégla építéssel, 10 cm-es grafitos homlokzati, 30cm födém szigeteléssel ellátott garázsok mentén összeépített ikerház, 800 nm-es telken, 20 nm-es garázzsal eladó. Kulcsrakész átadás legkésőbb 2026 év vége.Az ingatlan azonosítója: 98304Érdeklődni: +36702560693 Az ingatlan azonosítója: 98304 Érdeklődni: +36702560693

Családi ház részletei

Ár: 76 950 000 Ft
Méret: 122 négyzetméter
Azonosító: 11590573
Irodai azonosító: 98304
Telek: 800 négyzetméter
Ingatlan állapota: Épülő
Jelleg: családi ház
Építőanyag: Tégla
Fűtés jellege: Cirkó
Kor: 1-5 éves
Egész szobák: 3

Így keressen családi házat négy egyszerű lépésben. Csupán 2 perc, kötelezettségek nélkül!

Szűkítse a családi házak
listáját
Válassza ki a megfelelő
családi házat
Írjon a hirdetőnek
Várjon a visszahívásra