Eladó családi ház Nyírpazony 76 000 000 Ft

Leírás

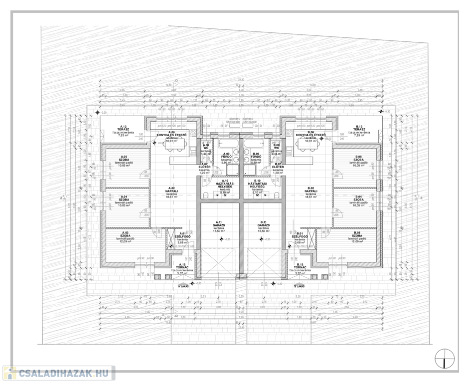
Nyírpazonyban, vételre kínálok egy több referenciával rendelkező építettőtől Új építésű 96 nm-es, 3 szoba, nappalis teraszkapcsolattal rendelkező 1 fürdő és 2 wc-vel, háztartási helységgel rendelkező iker házat, választható minőségi hideg és meleg burkolattal, beltéri ajtóval és szaniterekkel. Hőszivattyús padló fűtéssel, 3 rétegű műanyag nyílászárókkal, tégla építésű, 15 cm-es homlokzati, 30 cm-es födém, 10 cm-es aljzat szigeteléssel, 16,5 nm-es automata kapuval ellátott garázzsal, 400 nm-es körbekerített telken, épített utcafronti kerítéssel, térburkolattal, a ház garázs és fürdő mentén összeépített ikerház.
Energetika besorolása: A++Az ingatlan azonosítója: 99922Érdeklődni: +36209222558 Az ingatlan azonosítója: 99922 Érdeklődni: +36209222558

Családi ház részletei

Ár: 76 000 000 Ft
Méret: 96 négyzetméter
Azonosító: 11603849
Irodai azonosító: 99922
Telek: 400 négyzetméter
Ingatlan állapota: Épülő
Jelleg: családi ház
Építőanyag: Tégla
Fűtés jellege: Geotermikus
Kor: 1-5 éves
Egész szobák: 3

Így keressen családi házat négy egyszerű lépésben. Csupán 2 perc, kötelezettségek nélkül!

Szűkítse a családi házak
listáját
Válassza ki a megfelelő
családi házat
Írjon a hirdetőnek
Várjon a visszahívásra