Eladó családi ház Nyírpazony 76 000 000 Ft

Leírás

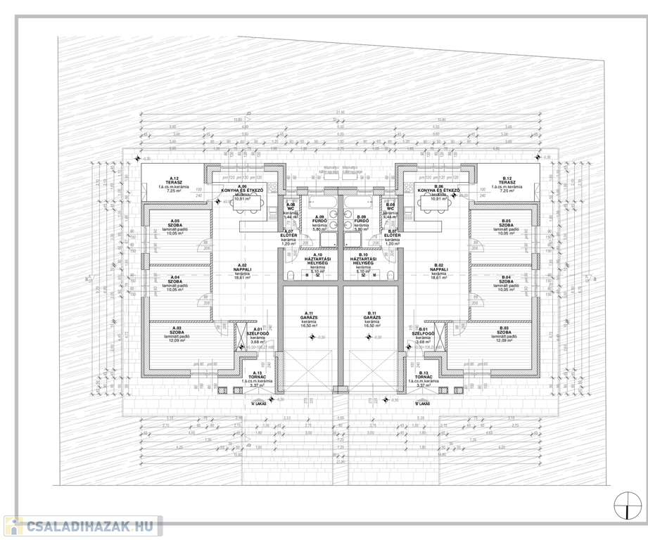
Nyírpazony központjában, ÚJ ÉPÍTÉSŰ, 112 nm-es, 3 szoba + Nappali teraszkapcsolattal, 1 fürdő és 2 wc-vel, háztartási helységgel. Választható minőségi hideg és meleg burkolattal, beltéri ajtóval és szaniterekkel. Hőszivattyús padló fűtéssel, 3 réteg üvegezésű Kömmerling nyílászárókkal. Ragasztóhabos tgégla építésű, 15 cm-es homlokzati, 30 cm-es födém, 10 cm-es aljzat szigeteléssel, 16,5 nm-es automata kapuval ellátott garázzsal, 400 nm-es körbekerített telken, épített utcafronti kerítéssel, térburkolattal, garázs és fürdő mentén összeépített ikerház eladó. Energetikai besorolás A+Az ingatlan azonosítója: 99919Érdeklődni: +36702560693 Az ingatlan azonosítója: 99919 Érdeklődni: +36702560693

Családi ház részletei

Ár: 76 000 000 Ft
Méret: 112 négyzetméter
Azonosító: 11603847
Irodai azonosító: 99919
Telek: 400 négyzetméter
Ingatlan állapota: Épülő
Jelleg: családi ház
Építőanyag: Tégla
Fűtés jellege: Geotermikus
Kor: 1-5 éves
Egész szobák: 3

Így keressen családi házat négy egyszerű lépésben. Csupán 2 perc, kötelezettségek nélkül!

Szűkítse a családi házak
listáját
Válassza ki a megfelelő
családi házat
Írjon a hirdetőnek
Várjon a visszahívásra