Eladó családi ház Nyíregyháza, Oros, 98 500 000 Ft

Leírás

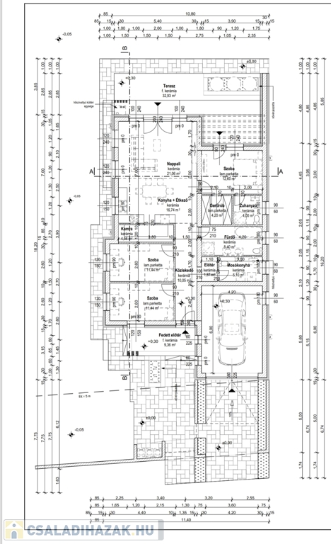
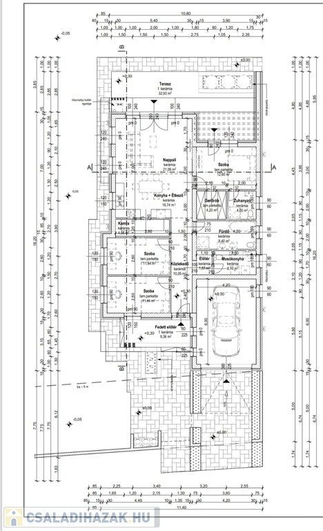
Nyíregyháza–Oros központi részének közelében eladásra kínálunk egy 139 m²-es, modern kialakítású, új építésű családi házat, mely 3 szobával, valamint nappali–konyha–étkező együttesével biztosít kényelmes életteret. Választható: járólap, laminált parketta burkolat, beltéri ajtók, szaniterek, csempék.
Főbb jellemzők:


energiatakarékos hőszivattyús padló fűtési rendszer


kiváló hőszigetelés:


15 cm külső fal-,


8 cm padlószigetelés,


30 cm tetőszigetelés




3 réteg üvegezésű műanyag nyílászárók


tartós alacsony lejtésszögű lemeztető 


33 m²-es fedett terasz


külön mosókonyha és gardrób helyiség


hűtő-fűtő klímaberendezés

Energetikai besorolás A+

25,2 m²-es garázs


Az ingatlan Porotherm 30-as téglából épül, a hozzá tartozó 3200 m²-es telek tágas, sok lehetőséget kínál.
Várható átadás: 2026 második fele, egyedi megállapodás szerint rugalmasan alakítható.
Ideális választás mindazok számára, akik modern, energiatakarékos, nyugodt környezetben lévő otthont keresnek.
Energetikai besorolás:AA+Az ingatlan azonosítója: 99496Érdeklődni: +36702560693 Az ingatlan azonosítója: 99496 Érdeklődni: +36702560693

Családi ház részletei

Ár: 98 500 000 Ft
Méret: 139 négyzetméter
Azonosító: 11593657
Irodai azonosító: 99496
Városrész: Oros
Telek: 3200 négyzetméter
Ingatlan állapota: Épülő
Jelleg: családi ház
Építőanyag: Tégla
Fűtés jellege: Geotermikus
Kor: 1-5 éves
Egész szobák: 3

Így keressen családi házat négy egyszerű lépésben. Csupán 2 perc, kötelezettségek nélkül!

Szűkítse a családi házak
listáját
Válassza ki a megfelelő
családi házat
Írjon a hirdetőnek
Várjon a visszahívásra