Eladó családi ház Nyíregyháza, Oros, 98 000 000 Ft

Leírás

Ár: 98 000 000 Ft
Telefon: 06 20 9 268 433

Eladó új építésű ikerház Nyíregyháza – Oros aszfaltos utcájában
Nyíregyháza csendes, aszfaltozott utcájában eladásra kínálok egy 2026 júniusában átadásra kerülő, modern kialakítású ikerházat.
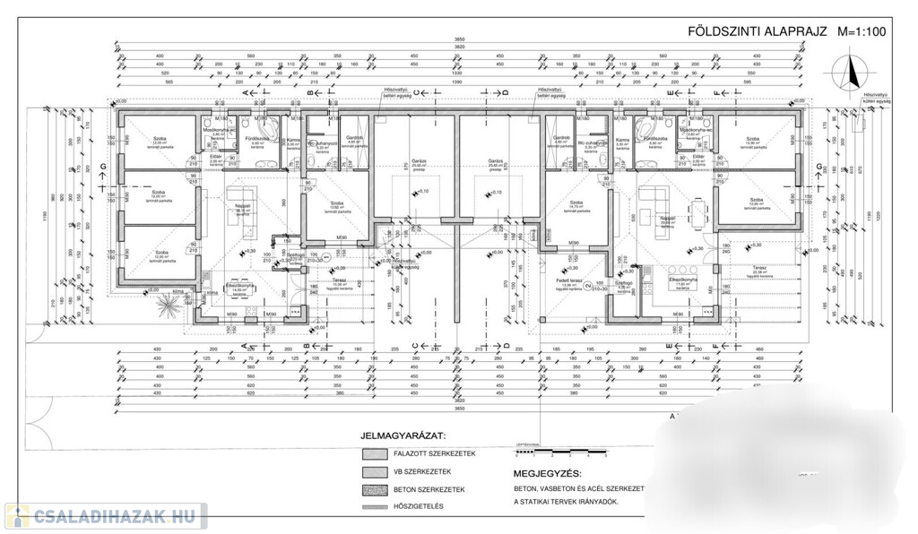
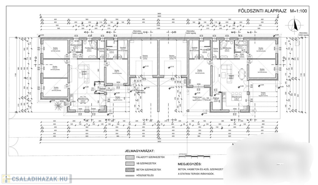
Főbb adatok


Lakótér: 121 m²


Garázs: 25,6 m²


Terasz: 15 m²


Telekrész: 500 m²

energetikai besorolás A++


Elosztás


4 hálószoba


Nappali–étkező–konyha


Kamra


Fürdőszoba WC-vel


Külön mosókonyha


Szülői hálószoba saját zuhanyzós fürdőszobával, WC-vel és gardróbszobával


25,6 m²-es garázs, amelyen keresztül érintkezik a szomszéd ikerházzal


Az ikerház kizárólag a garázsnál kapcsolódik a szomszédhoz, így a lakótér teljesen szeparált.
A 15 m²-es terasz és az 500 m²-es telekrész kiváló lehetőséget biztosít kert, játszótér vagy akár medence kialakítására is.

Műszaki jellemzők


30-as Porotherm nútféderes téglafalazat


15 cm vastag homlokzati hőszigetelés


Terranova gyöngylábazat antracit színben


Fehér műanyag nyílászárók, háromrétegű üvegezéssel


Aluminium csatornarendszer


Tondach antracit színű cserépfedés


Modern hőszivattyús fűtés-hűtés  - loxone rendszer-  teljes padlófűtéssel


Tervezett átadás: 2026. június
Érdeklődés esetén keressen bizalommal!Az ingatlan azonosítója: 99921Érdeklődni: +36209268433 Az ingatlan azonosítója: 99921 Érdeklődni: +36209268433

Családi ház részletei

Ár: 98 000 000 Ft
Méret: 121 négyzetméter
Azonosító: 11603848
Irodai azonosító: 99921
Városrész: Oros
Telek: 500 négyzetméter
Ingatlan állapota: Épülő
Jelleg: családi ház
Építőanyag: Tégla
Fűtés jellege: Geotermikus
Kor: 1-5 éves
Egész szobák: 4
Fél szobák: 1

Így keressen családi házat négy egyszerű lépésben. Csupán 2 perc, kötelezettségek nélkül!

Szűkítse a családi házak
listáját
Válassza ki a megfelelő
családi házat
Írjon a hirdetőnek
Várjon a visszahívásra