Eladó családi ház Nyíregyháza 95 000 000 Ft

Leírás

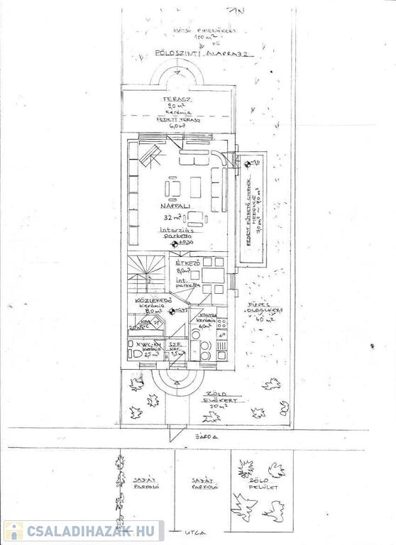
Nyíregyháza Korányi kertvárosban eladó egy 150 nm-es, 4 szoba, nappalis, kívülről szigetelt, fa hőszigetelt nyílászárókkal szerelt, járólap és parketta burkolattal rendelkező, egyedi gázfűtéses, klimatizált sorház. A földszinten található, nappali teraszkapcsolattal, étkező, konyha, mosdó wc-vel és kamra, a második szinten,  3 szoba, gardrób és fürdőszoba sarok fürdőkáddal, wc és bidével és egy erkély, valamint harmadik szinten egy szoba található. Amennyiben szeretné megtekinteni, kérem hívjon!  Az ingatlan azonosítója: 98601Érdeklődni: +36703610015 Az ingatlan azonosítója: 98601 Érdeklődni: +36703610015

Családi ház részletei

Ár: 95 000 000 Ft
Méret: 150 négyzetméter
Azonosító: 11576633
Irodai azonosító: 98601
Telek: 270 négyzetméter
Ingatlan állapota: Átlagos
Jelleg: családi ház
Építőanyag: Tégla
Fűtés jellege: Cirkó
Kor: 21-50 éves
Egész szobák: 4

Így keressen családi házat négy egyszerű lépésben. Csupán 2 perc, kötelezettségek nélkül!

Szűkítse a családi házak
listáját
Válassza ki a megfelelő
családi házat
Írjon a hirdetőnek
Várjon a visszahívásra