Eladó családi ház Nyíregyháza 92 000 000 Ft

Leírás

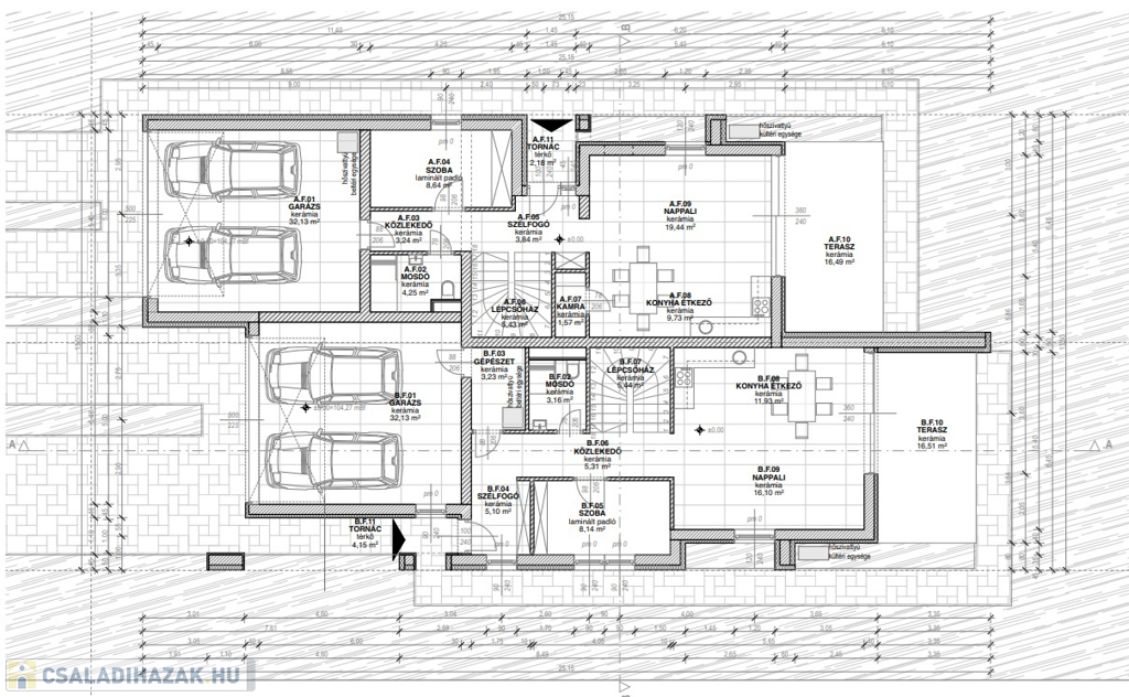
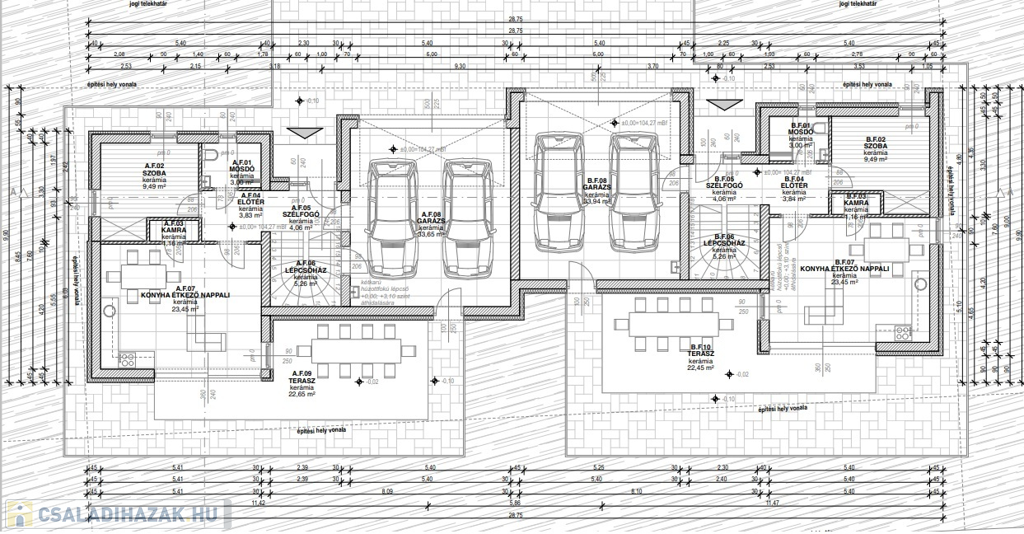
Nyíregyháza - Sóstóhegy,  Kemecsei út Közelében, eladásra kínálok egy 190 nm-es, 3 szoba, amerikai konyha nappalis, ÚJ ÉPÍTÉSŰ szintes ikerházat, nagy terasszal, 2 állásos garázzsal, 410 nm-es telekterülettel.
 
További jellemzők:
- POROTHERM 30 N+F Rapid okos téglából épült, szigetelés (15 cm)
- műanyag nyílászárók  (antracit szürke)
- hőszivattyú padlófűtés
- terasz (15 nm, 22 nm)
- klíma előkészítve
- választható burkolat és beltéri ajtók
- térkövezett udvar, épített kerítés
Földszint: amerikai konyha nappali-teraszkapcsolattal, 2 állásos garázs
Emeleten: 3 külön nyíló szoba, 2 szobához nagy erkély, fürdőszoba-WC, gardrób, mosókonyha került kialakításra
Az ingatlan csendes, zöldövezeti részen található, kiváló kivitelezéssel, rövid határidőn belüli költözéssel.
 
 
 
 
 
 
 Az ingatlan azonosítója: 65419Érdeklődni: +36204394852 Az ingatlan azonosítója: 65419 Érdeklődni: +36204394852

Családi ház részletei

Ár: 92 000 000 Ft
Méret: 190 négyzetméter
Azonosító: 11534314
Irodai azonosító: 65419
Ingatlan állapota: Épülő
Jelleg: családi ház
Építőanyag: Tégla
Fűtés jellege: Geotermikus
Kor: 1-5 éves
Egész szobák: 3

Így keressen családi házat négy egyszerű lépésben. Csupán 2 perc, kötelezettségek nélkül!

Szűkítse a családi házak
listáját
Válassza ki a megfelelő
családi házat
Írjon a hirdetőnek
Várjon a visszahívásra