Eladó családi ház Nyíregyháza 89 800 000 Ft

Leírás

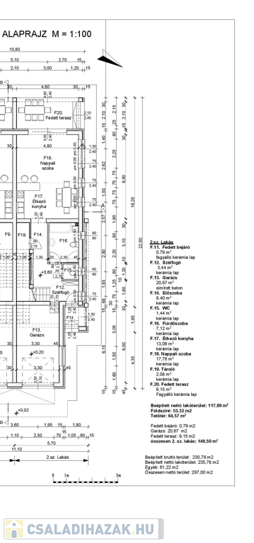
Nyíregyházán, Báthory Lakóparkban, Újszerű, Igényes, Fiatalos, 230 nm-es, Nappali+4 Szobás IkerHáz, 20 nm-es Garázzsal Eladó! 


Gázcirkós fűtés - földszinten padlófűtéssel, emeleten radiátoros hőleadókkal 


Porotherm 30 N+F tégla falazat, 15 cm külső szigeteléssel,


20 cm födémszigetelés,


cserép tető fedés,


3 rétegű műanyag nyílászárók


laminált padló, járólap burkolatokkal. 


Az ikerház 230 nm., 2021-ben épült, 350 nm-es saját telekterülettel rendelkezik, mely parkosított, öntözését fúrt kút és öntözőrendszer biztosítja. 
Az ingatlanban Földszinten: 


nappali-konyha-étkező fedett teraszkapcsolattal


konyha-beépített gépesített magasfényű konyhabútorral, hűtőszekrénnyel, mikrohullámú sütővel


nappaliban klíma,


fürdőszoba - sarokkáddal, külön helyiségben wc


fedett bejárat


szélfogó


közlekedő


lépcső alatt beépített tároló


20 nm garázs - szekcionált garázskapuval


Az Emeleten:

4 külön nyíló szoba- egy szoba gardróbbal
- egy szoba beépített szekrénnyel, nagy terasszal
fürdőszoba zuhanyzóval – wc  található.

Az ingatlan Tehermentes, Szeptember 01.-től költözhető.
Ne maradjon le róla, érdeklődjön még ma és foglalja le álmai otthonát! 
Amennyiben felkeltette érdeklődését várom hívását!Vásárlóinknak a szolgáltatás Díjtalan!Az ingatlan azonosítója: 68374Érdeklődni: +36305778872 Az ingatlan azonosítója: 68374 Érdeklődni: +36305778872

Családi ház részletei

Ár: 89 800 000 Ft
Méret: 230 négyzetméter
Azonosító: 11551516
Irodai azonosító: 68374
Telek: 350 négyzetméter
Ingatlan állapota: Kitűnő
Jelleg: családi ház
Építőanyag: Tégla
Fűtés jellege: Cirkó
Kor: 1-5 éves
Egész szobák: 4

Így keressen családi házat négy egyszerű lépésben. Csupán 2 perc, kötelezettségek nélkül!

Szűkítse a családi házak
listáját
Válassza ki a megfelelő
családi házat
Írjon a hirdetőnek
Várjon a visszahívásra