Eladó családi ház Nyíregyháza, Újkisteleki szőlő, 89 000 000 Ft

Leírás

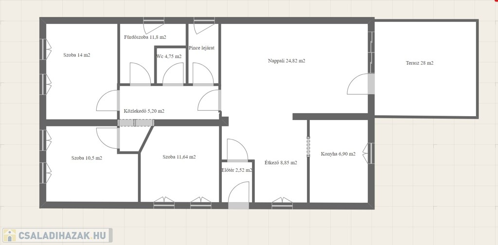
Nyíregyháza, Újkistelekiszőlőben eladó első tulajdonos által 2001-ben épített kizárólag magas minőségű anyagokból, kiváló állapotú folyamatosan karbantartott energia takarékos, repedés és vizesedés mentes szép családi ház rendezett kerttel. Az ingatlan fűtött alapterülete 126 m2-s, 38-s Porotherm téglából épült rajta 2*3 cm polisztirolgyöngy hőszigetelő vakolat a tető hódfarkú kettős fedés, három különnyíló szoba, nappali, külön konyha+étkező, fürdőszoba külön 2 db. wc., laminált padló és natur kerámia burkolat, fűtése egyedi gáz, padló fűtés, kerámia kályha és klíma a használati víz ellátás napkollektorokkal+ 200 L melegvíz tárolóval működik, három rétegű üveg 4 éves műanyag nyílászárók a ház alatt 50 m2-s pince található benne igény szerint szükséges negyedik szoba vagy tároló, wc, garázs (23,8 m2), kazánház van. A 813 m2-s parkosított teleken található még 28 m2-s nyitott terasz, kerti tároló, fúrt kút, ipari áram, riasztó. Ha ön szép igényes meghitt Rusztikus otthont szeretne ne habozzon jöjjön és tekintse meg ezt a kitűnő ajánlatot.

Családi ház részletei

Ár: 89 000 000 Ft
Méret: 150 négyzetméter
Azonosító: 11440438
Irodai azonosító: 7046
Városrész: Újkisteleki szőlő
Telek: 813 négyzetméter
Ingatlan állapota: Újszerű
Jelleg: családi ház
Építőanyag: Tégla
Fűtés jellege: Cirkó
Fűtés módja: Gáz
Komfort fokozat: Összkomfort
Kor: 21-50 éves
Elhelyezkedés: Udvari
Szintek száma: Földszintes
Bútorozott: Nem bútorozott
Egész szobák: 2
Fél szobák: 1
Nappalik: 1

Egyéb jellemzők

  • Beépíthető tetőtér
  • Csatorna
  • Garázs
  • Kábel TV
  • Melléképület
  • Padlás
  • Parketta
  • Pince
  • Terasz

Így keressen családi házat négy egyszerű lépésben. Csupán 2 perc, kötelezettségek nélkül!

Szűkítse a családi házak
listáját
Válassza ki a megfelelő
családi házat
Írjon a hirdetőnek
Várjon a visszahívásra