Eladó családi ház Nyíregyháza 89 000 000 Ft

Leírás

Eladó Nyíregyháza Nyírszőlős részén a Gólyahír lakóparkban 2025-ben épülő új amerikai stílusú A++ besorolású 4 szobás kertes családi ház. (T/1)

Ára: 89.000.000 Ft.

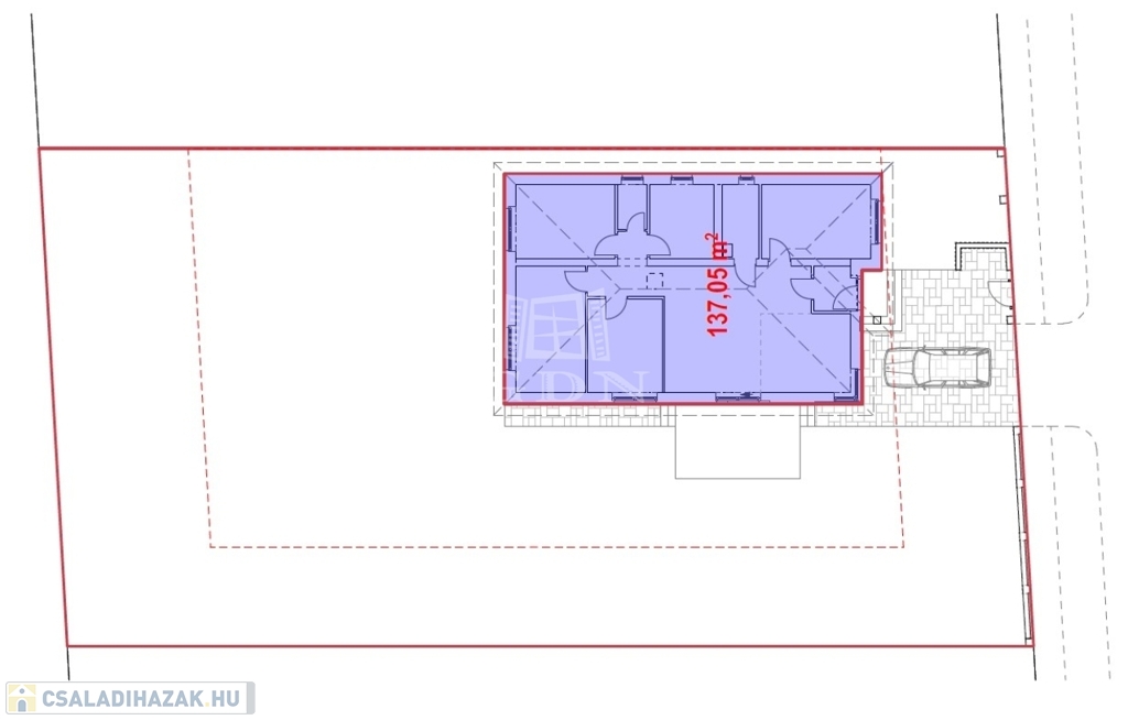
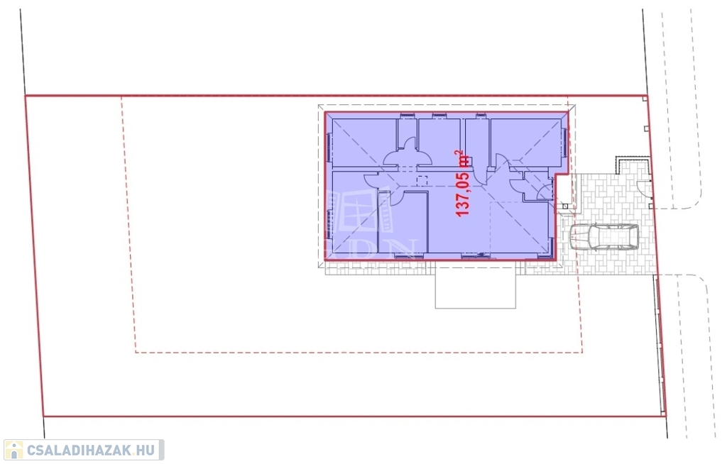
Az ingatlan alap méretei:
- a telek mérete: 781nm,
- a ház alapterülete: 137nm.

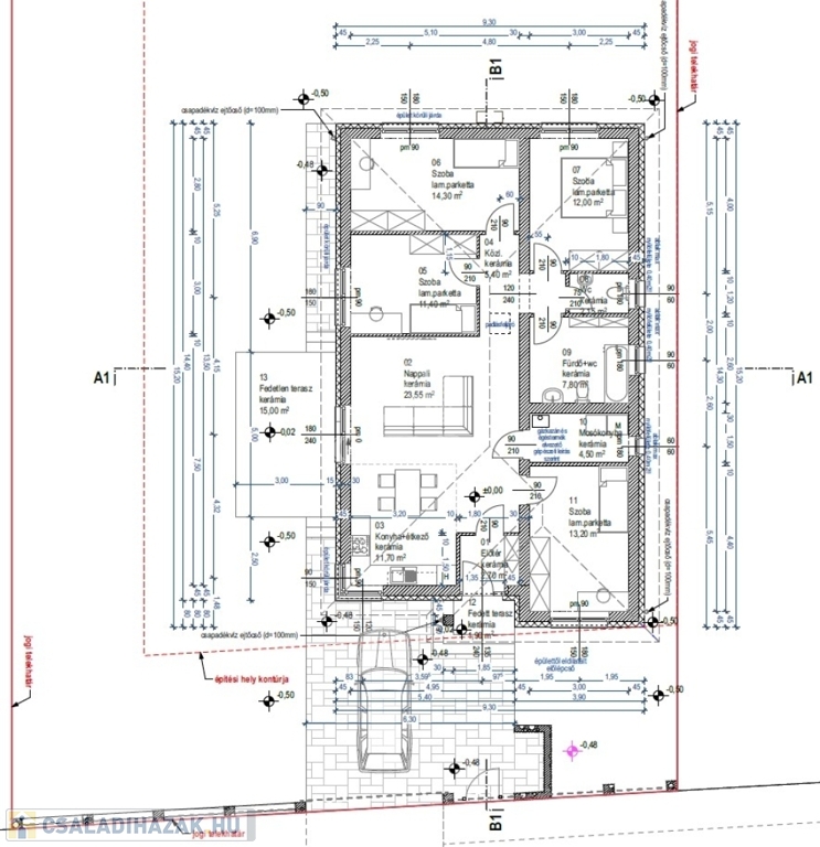
Az épület hasznos alapterülete 108,7nm melyben található:
- 4 szoba,
- amerikai konyhás nappali,
- fürdőszoba + WC,
- mosókonyha,
- WC,
- közlekedő,
- előtér,
- fedett terasz.


Az új építésű családi ház várhatóan 8 hónapon belül kerül átadásra, mely korszerű hő takarékos építészeti megoldásokat alkalmazva készül el. A falazata 30-as téglából épül, mely 15 cm-es EPS homlokzati hőszigetelést kap. A födém szerkezete 15 cm-es ásványszálas hőszigetelésű lesz, így az egész épület energetikai szempontból A++ kategóriájú.

Az amerikai stílusú kombinált sátortető cseréppel lesz fedve. Az épületben áram, víz, gáz és csatorna szintén bekötésre kerül. Az épület padlófűtéssel, radiátoros fűtéssel vagy kérés esetén a kettő kombinációjával készül el, mely gáz cirkó kazánról fog működni. Ezen kívül még 2 db hűtő-fűtő klíma is rendelkezésre fog állni. A melegvíz ellátásról szintén a gáz cirkó kazán gondoskodik.

Az ingatlan ideális választás lehet mindazok számára, akik új építésű, modern energiatakarékos otthont keresnek nyugodt kertvárosi környezetben.

Fontos!
Az ingatlan per és tehermentes, 3 gyerekes CSOK Plusz is igénybe vehető!

Figyelem!
Minőségi kivitelezés és választható belső burkolatok, szaniterek.
2025-ös energetikai szabványoknak megfelelő modern megoldások.
A belső elrendezés igény szerint módosítható.

Ha felkeltette érdeklődését, hívja irodánkat bizalommal!
Ha hitelre van szüksége éljen ingyenes, személyre szabott hitel ügyintézési szolgáltatásunkkal is.

Családi ház részletei

Ár: 89 000 000 Ft
Méret: 109 négyzetméter
Azonosító: 11569272
Irodai azonosító: 388007
Cím: Gólyahír lakópark 1
Telek: 781 négyzetméter
Ingatlan állapota: Kitűnő
Jelleg: családi ház
Építőanyag: Tégla
Fűtés jellege: Cirkó
Fűtés módja: Gáz
Komfort fokozat: Dupla komfort
Kor: Új építésű
Szintek száma: Földszintes
Egész szobák: 4

Egyéb jellemzők

  • Csatorna
  • Garázs
  • Pince
  • Terasz

Térkép


Így keressen családi házat négy egyszerű lépésben. Csupán 2 perc, kötelezettségek nélkül!

Szűkítse a családi házak
listáját
Válassza ki a megfelelő
családi házat
Írjon a hirdetőnek
Várjon a visszahívásra