Eladó családi ház Nyíregyháza, Oros, 87 500 000 Ft

Leírás

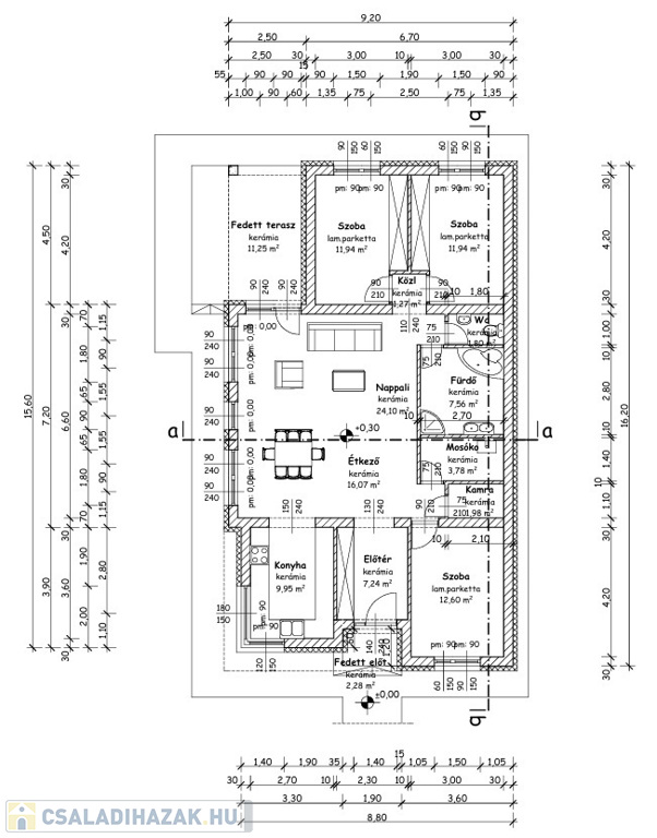
Nyíregyházán- Oroson, Fő út közelében kínálok eladásra egy új építésű, Nappali + 3 szobás, 110 nm-es, Önálló családi házat.Az ingatlan 100 %-ban kulcsrakész állapotban kerül átadásra – megbízható kivitelezőtől, referencia munkákkal!Elrendezése:

Nappali–konyha–étkező:  - fedett teraszkapcsolattal,
3 külön nyíló szoba,
Fürdőszoba,
Mosókonyha,
Kamra,
Előtér,
Közlekedő.

 
Főbb jellemzők:

Tégla falazat (Porotherm 30 ), 15 cm-es külső szigeteléssel,
30 cm-es födémszigeteléssel,
Hőszivattyús padlófűtés,
Alacsony lejtésszögű lemeztető
3 rétegű Műanyag nyílászárók,
2200 nm-es saját telekterülettel.

A vételár tartalmazza a kerítést, valamint térkövezett bejáratot. Az ingatlan tágas és világos terekkel, átgondolt elrendezéssel és igényes kivitelezéssel rendelkezik.A kivitelező korábbi munkái megtekinthetők – igény esetén referenciaingatlan bemutatása megoldható!
 
A hirdetésben szereplő képek referencia ingatlanról készültek!Amennyiben felkeltette az érdeklődését, várom hívását!
 Az ingatlan azonosítója: 69319Érdeklődni: +36303089895 Az ingatlan azonosítója: 69319 Érdeklődni: +36303089895

Családi ház részletei

Ár: 87 500 000 Ft
Méret: 110 négyzetméter
Azonosító: 11583065
Irodai azonosító: 69319
Városrész: Oros
Telek: 2200 négyzetméter
Ingatlan állapota: Épülő
Jelleg: családi ház
Építőanyag: Tégla
Fűtés jellege: Geotermikus
Egész szobák: 3

Így keressen családi házat négy egyszerű lépésben. Csupán 2 perc, kötelezettségek nélkül!

Szűkítse a családi házak
listáját
Válassza ki a megfelelő
családi házat
Írjon a hirdetőnek
Várjon a visszahívásra