Eladó családi ház Nyíregyháza 85 000 000 Ft

Leírás

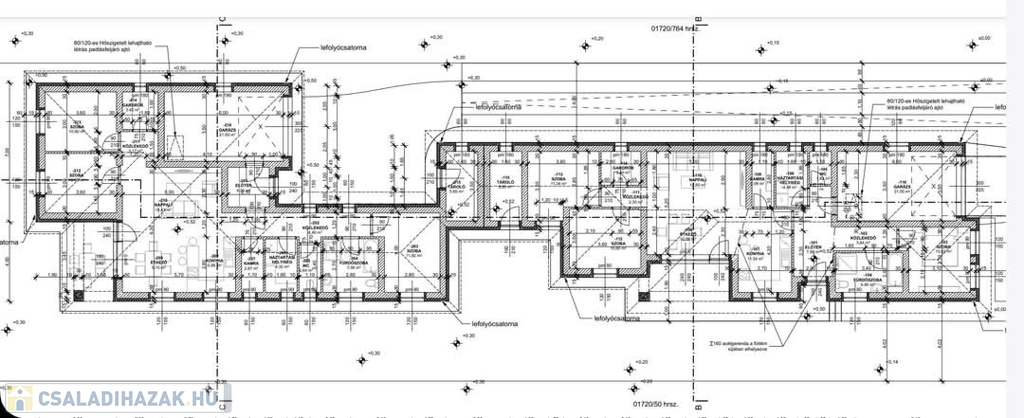
Nyíregyháza-Borbánya elején a Kállói úti ABC közelében eladó egy ÚJ ÉPÍTÉSŰ 130 nm-es, 3 szoba + nappali-étkezős, egyedi gázfűtéses ikerház 330 nm-es telekterülettel.   
Az ingatlan kondenzációs gázkazánnal + padlófűtéssel, inverteres klímával, műanyag nyílászárókkal felszerelt, Porotherm 30 téglából épült, 15 cm homlokzati, 30 cm födém, 10 cm lépésálló hőszigeteléssel ellátott és tartozik hozzá egy elektromos kapuval felszerelt 21 nm-es garázs. Tervezett átadás 2026 év eleje.
Bármilyen kérdése van az ingatlannal kapcsolatban, annak hitelfinanszírozásáról, vagy ha személyesen megtekintené, keressen bizalommal!
 Az ingatlan azonosítója: 67642Érdeklődni: 06302669818 Az ingatlan azonosítója: 67642 Érdeklődni: 06302669818

Családi ház részletei

Ár: 85 000 000 Ft
Méret: 130 négyzetméter
Azonosító: 11534682
Irodai azonosító: 67642
Telek: 330 négyzetméter
Ingatlan állapota: Épülő
Jelleg: családi ház
Építőanyag: Tégla
Fűtés jellege: Cirkó
Kor: 1-5 éves
Egész szobák: 3

Így keressen családi házat négy egyszerű lépésben. Csupán 2 perc, kötelezettségek nélkül!

Szűkítse a családi házak
listáját
Válassza ki a megfelelő
családi házat
Írjon a hirdetőnek
Várjon a visszahívásra