Eladó családi ház Nyíregyháza 85 000 000 Ft

Leírás

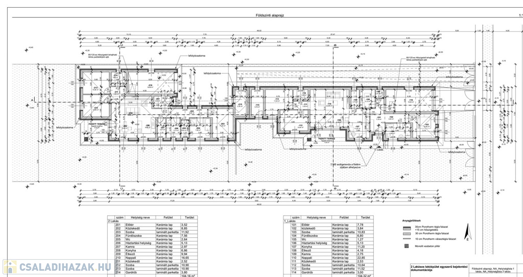
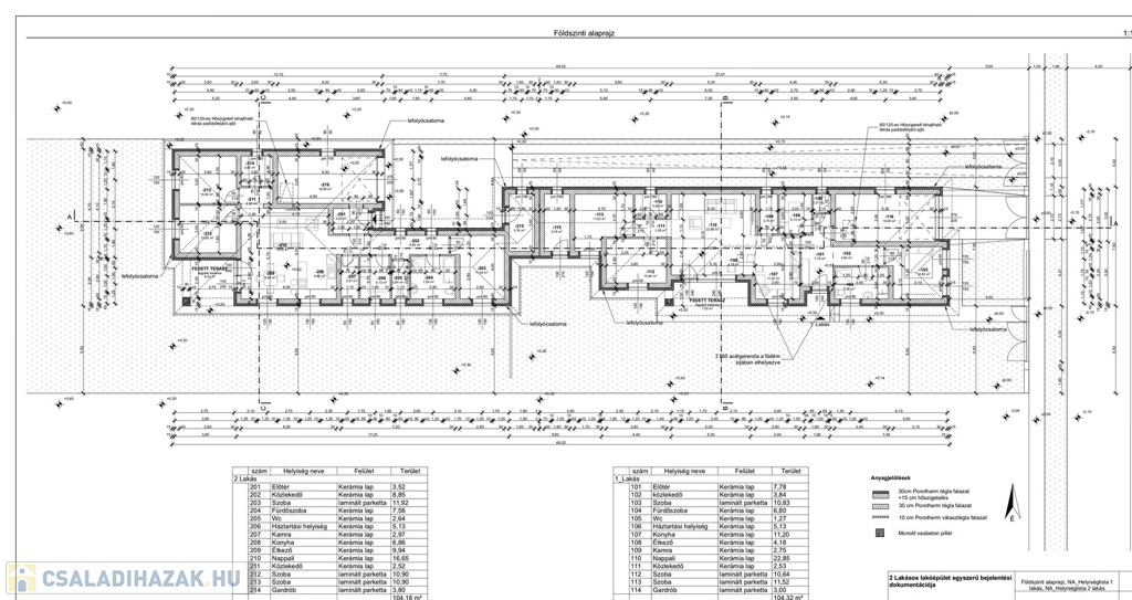
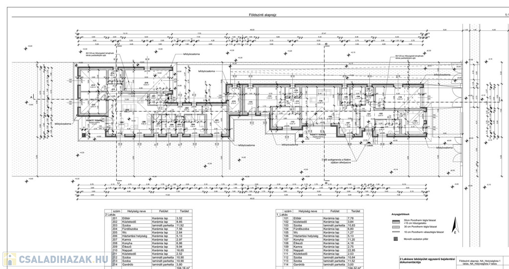
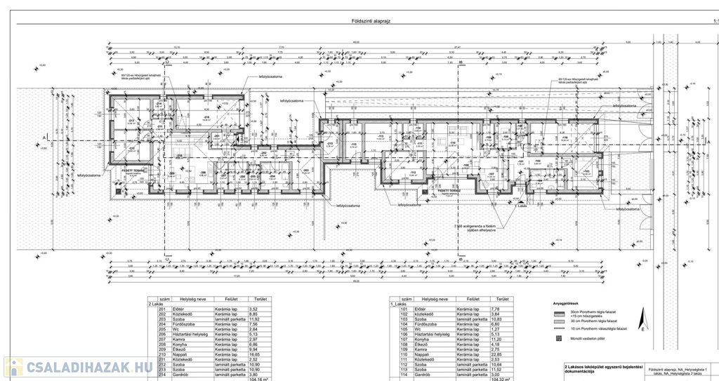
Nyíregyháza Borbánya Kállói úthoz közel, ÚJ ÉPÍTÉSŰ 129 nm-es, 3 szoba + nappali étkező konyha egy légtérben teraszkapcsolattal, fürdő + 2 wc, mosókonyha és kamra, választható járólap és laminált padló burkolattal, egyedi gáz kondenzációs gázkazánnal padló fűtéssel, inverteres klímával, 3 réteg üvegezésű műanyag nyílászárókkal, Porotherm 30 téglából 15 cm homlokzati, 30 cm födém, 10 cm lépésálló hőszigeteléssel ellátott 2 db egyenként 5,6 nm-es tároló mentén összeépített ikerház, elektromos szekcionált kapuval ellátott 19nm-es garázzsal, 900 nm-es telken, 2026 nyári átadással eladó.Az ingatlan azonosítója: 97411Érdeklődni: +36702560693 Az ingatlan azonosítója: 97411 Érdeklődni: +36702560693

Családi ház részletei

Ár: 85 000 000 Ft
Méret: 129 négyzetméter
Azonosító: 11576512
Irodai azonosító: 97411
Telek: 900 négyzetméter
Ingatlan állapota: Épülő
Jelleg: családi ház
Építőanyag: Tégla
Fűtés jellege: Cirkó
Egész szobák: 3

Így keressen családi házat négy egyszerű lépésben. Csupán 2 perc, kötelezettségek nélkül!

Szűkítse a családi házak
listáját
Válassza ki a megfelelő
családi házat
Írjon a hirdetőnek
Várjon a visszahívásra