Eladó családi ház Nyíregyháza, Oros, 80 500 000 Ft

Leírás

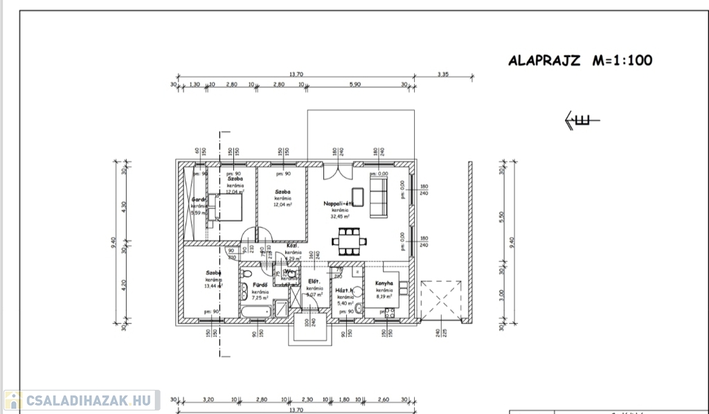
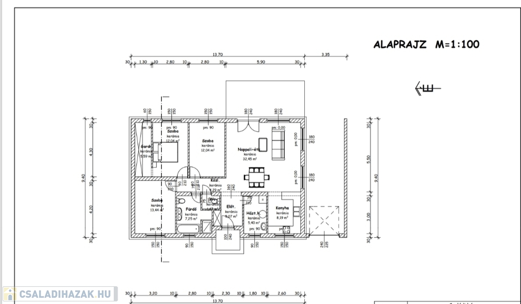
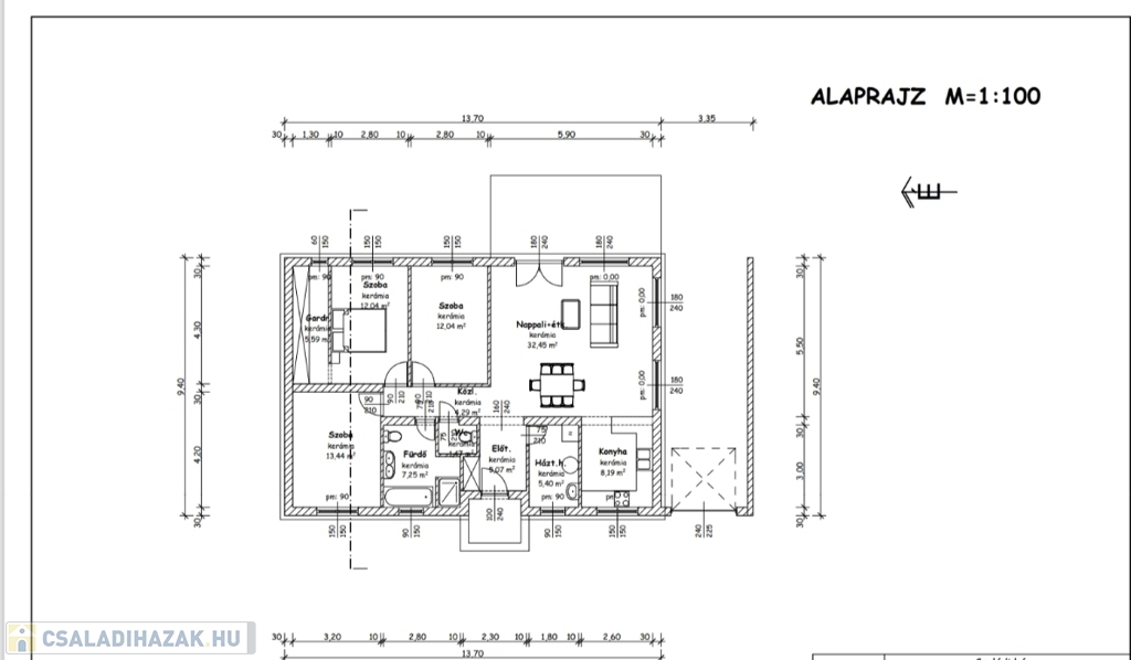
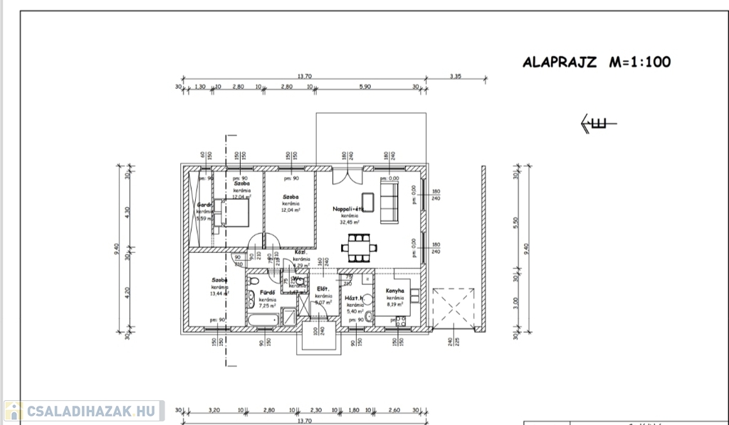
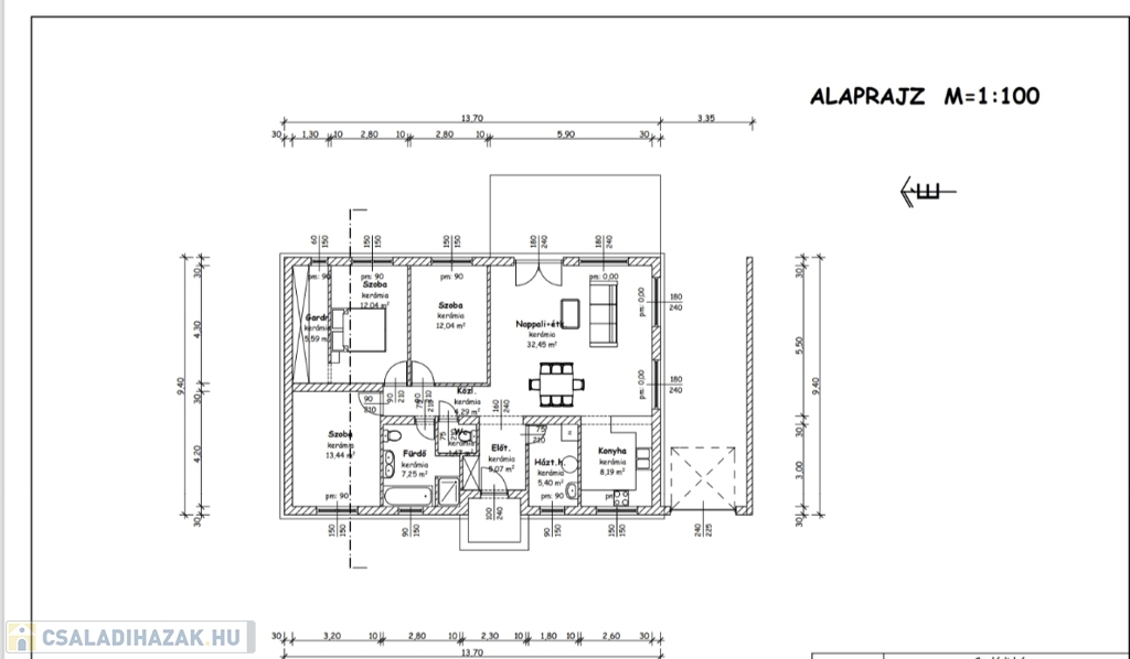
Nyíregyháza–Oros központi részének közelében eladásra kínálunk egy 110 m²-es, modern kialakítású, új építésű családi házat, mely 3 szobával, valamint nappali–konyha–étkező együttesével biztosít kényelmes életteret.
Főbb jellemzők:


energiatakarékos hőszivattyús fűtési rendszer


kiváló hőszigetelés:


15 cm külső fal-,


8 cm padlószigetelés,


30 cm tetőszigetelés




3 rétegű, 5 légkamrás műanyag nyílászárók


11,2 m²-es fedett terasz


külön mosókonyha és gardrób helyiség


klímaberendezés


fedett autóbeálló 


Az ingatlan B-30-as téglából épül, a hozzá tartozó 600 m²-es telekkel
Várható átadás: 2026 második fele, egyedi megállapodás szerint rugalmasan alakítható.
Ideális választás mindazok számára, akik modern, energiatakarékos, nyugodt környezetben lévő otthont keresnek.Az ingatlan azonosítója: 99460Érdeklődni: +36709442086 Az ingatlan azonosítója: 99460 Érdeklődni: +36709442086

Családi ház részletei

Ár: 80 500 000 Ft
Méret: 110 négyzetméter
Azonosító: 11590805
Irodai azonosító: 99460
Városrész: Oros
Telek: 600 négyzetméter
Ingatlan állapota: Épülő
Jelleg: családi ház
Építőanyag: Tégla
Fűtés jellege: Geotermikus
Kor: 1-5 éves
Egész szobák: 3

Így keressen családi házat négy egyszerű lépésben. Csupán 2 perc, kötelezettségek nélkül!

Szűkítse a családi házak
listáját
Válassza ki a megfelelő
családi házat
Írjon a hirdetőnek
Várjon a visszahívásra