Eladó családi ház Nyíregyháza, Hímes, 79 900 000 Ft

Leírás

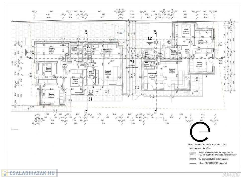
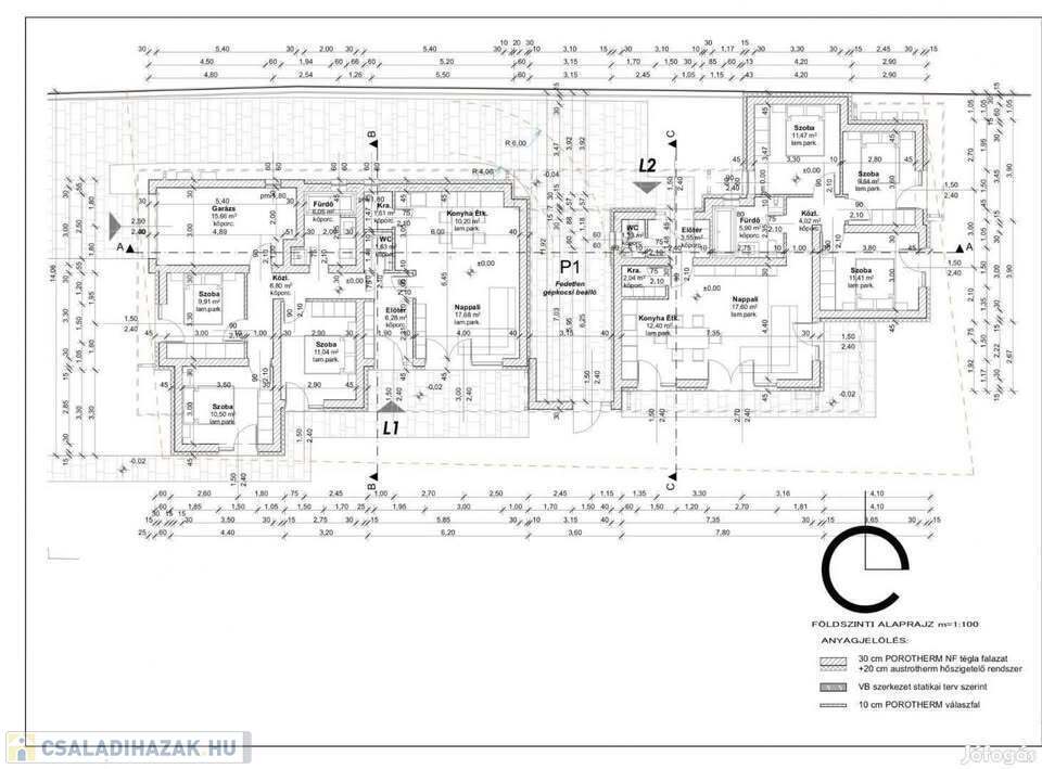
Nyíregyháza-Hímes városrészben eladó egy ÚJ ÉPÍTÉSŰ, 96 m²-es ikerházfél, amely 378 m²-es telken helyezkedik el.A téglaépítésű ingatlan elosztása: nappali-étkező-konyha közvetlen teraszkapcsolattal, 3 hálószoba, külön fürdőszoba, 2 wc, kamra. A burkolatok (járólap és laminált parketta) igény szerint választhatók.
Felszereltség:


3 rétegű üvegezésű műanyag nyílászárók


egyedi kondenzációs gázkazán padlófűtéssel


inverteres klíma


15 cm homlokzati és 30 cm födémszigetelés


Az ingatlanhoz épített kerítés és egyállásos garázs tartozik.Várható átadás: 2025 év vége.
Ár: 79,9 M FtVárható átadás: 2025 év vége.
 Érdeklődni: 20/926-8433Az ingatlan azonosítója: 98779Érdeklődni: +36209268433 Az ingatlan azonosítója: 98779 Érdeklődni: +36209268433

Családi ház részletei

Ár: 79 900 000 Ft
Méret: 96 négyzetméter
Azonosító: 11590622
Irodai azonosító: 98779
Városrész: Hímes
Ingatlan állapota: Épülő
Jelleg: családi ház
Építőanyag: Tégla
Fűtés jellege: Cirkó
Kor: 1-5 éves
Egész szobák: 3

Így keressen családi házat négy egyszerű lépésben. Csupán 2 perc, kötelezettségek nélkül!

Szűkítse a családi házak
listáját
Válassza ki a megfelelő
családi házat
Írjon a hirdetőnek
Várjon a visszahívásra