Eladó családi ház Nyíregyháza 76 900 000 Ft

Leírás

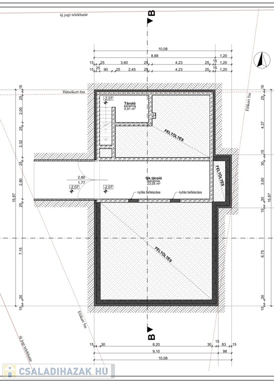
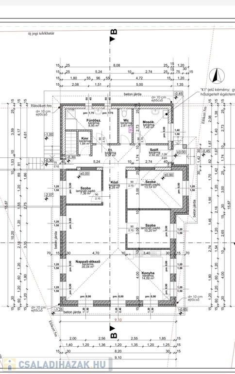
Nyíregyházán Nyírszőlős városhoz közelebbi részén eladásra kínálok egy 1300 m2 telekterületen elhelyezkedő 120 m2 alapterületű tágas 3 szoba Nappali elosztású önálló családi házat. Az ingatlan befejezés előtt áll, így kiváló lehetőség saját igény szerint alakítani. A ház alatt 30 m2  szerelőaknás garázs és tároló található. Porotherm X therm okos téglából épült, 15 cm grafitos szigeteléssel. Fűtéséről gázkondenzációs kazán gondoskodik padlófűtéssel. Adottságai alapján rendkívül alacsony fenntartási költségekkel rendelkezik. Antracit 3 rétegű hang és hőszigeteléssel műanyag nyílászárók,gránit párkányok. Antracit Bramac tetőcserép, 30 cm padlás szigeteléssel. Továbbá az ingatlanhoz megvásárlásra kerültek, de beépítésre még nem 3.000.000 Ft értékben ajtók, szaniterek, burkolatok, mely a vételárban benne van. Az ingatlan azonosítója: 96608Érdeklődni: +36303275386 Az ingatlan azonosítója: 96608 Érdeklődni: +36303275386

Családi ház részletei

Ár: 76 900 000 Ft
Méret: 120 négyzetméter
Azonosító: 11590429
Irodai azonosító: 96608
Telek: 1300 négyzetméter
Ingatlan állapota: Épülő
Jelleg: családi ház
Építőanyag: Tégla
Fűtés jellege: Cirkó
Kor: 1-5 éves
Egész szobák: 3

Így keressen családi házat négy egyszerű lépésben. Csupán 2 perc, kötelezettségek nélkül!

Szűkítse a családi házak
listáját
Válassza ki a megfelelő
családi házat
Írjon a hirdetőnek
Várjon a visszahívásra