Eladó családi ház Nyíregyháza, Oros, 75 900 000 Ft

Leírás

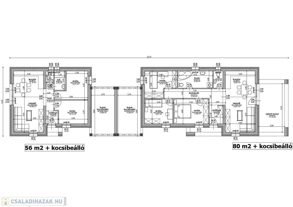
Nyíregyháza - Oros között, Kemence Csárda vonzásában, ÚJ ÉPÍTÉSŰ, 15nm-es garázsok mentén összeépített, 95 nm -es, 3 szoba + amerikai konyhás nappalival, külön fürdő és 2 wc-vel, 15 nm-es pergolás terasszal, választható járólap és laminált parketta burkolattal, elektromos padlófűtéssel, 3 rétegű műanyag nyílászárókkal redőnyökkel ellátva, 5 kw-os inverteres klímával a mai energetikai követelményeknek megfelelően, 420 nm-es telken, ikerház eladó. Kulcsátadás 100%-os készültség szerződéskötéstől számítva 10 hónap.Az ingatlan azonosítója: 97214Érdeklődni: +36702560693 Az ingatlan azonosítója: 97214 Érdeklődni: +36702560693

Családi ház részletei

Ár: 75 900 000 Ft
Méret: 95 négyzetméter
Azonosító: 11607801
Irodai azonosító: 97214
Városrész: Oros
Telek: 420 négyzetméter
Ingatlan állapota: Épülő
Jelleg: családi ház
Építőanyag: Tégla
Fűtés jellege: Villany
Kor: 1-5 éves
Egész szobák: 3

Így keressen családi házat négy egyszerű lépésben. Csupán 2 perc, kötelezettségek nélkül!

Szűkítse a családi házak
listáját
Válassza ki a megfelelő
családi házat
Írjon a hirdetőnek
Várjon a visszahívásra