Eladó családi ház Nyíregyháza, Oros, 76 000 000 Ft

Leírás

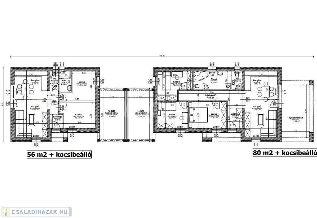
Nyíregyháza, Orosi kivezető fiatal építésű utcájában lefoglalható 2026-be épülő iker ház mindkét oldala. Az ingatlan 80-56 m2-s, a nagyobb három fél szoba, nappali, étkező, amerikai konyha, fürdőszoba és wc egyben, külön wc és szélfogó a kisebb ház kettő fél szoba, nappali+étkező+amerikai konyha egy térben, külön zuhanyzó és wc, szélfogó tartozik hozzájuk, műanyag nyílászárós mely három rétegű üveggel ellátott, villany kazán és padlófűtésű, 30-s porotherm téglából készülnek külsőleg 15 cm-s nikecel szigetelés, belső falak kartonozva, fafödémes rajta 35 cm-s salakgyapot szigetelés a mennyezet fémvázra erősített tűzálló gipszkarton a nyereg tető beton cseréppel fedett alatta párazáró fóliával. A nagyobbik háznak 480 m2-s telekterülete van a kisebbiknek 240 m2-s, mindkettőhöz tartozik egy fedett gépkocsi beálló és térkövezett járda. KÖLTÖZNI LEGHAMARABB 2026 ÉV VÉGE.

80 m2- 76 000 000 Ft.

56-m2- 65 000 000 Ft.

AMENNYIBEN FELKELTETTE AZ ÉRDEKLŐDÉSÉT KERESSEN ÉS HA SZÜKSÉGES HITELÜGYINTÉZÉSBEN IS TUDUNK SEGÍTENI.

Családi ház részletei

Ár: 76 000 000 Ft
Méret: 80 négyzetméter
Azonosító: 11596994
Irodai azonosító: 7501
Városrész: Oros
Telek: 480 négyzetméter
Ingatlan állapota: Épülő
Jelleg: ikerház
Építőanyag: Tégla
Fűtés jellege: Cirkó
Fűtés módja: Gáz
Komfort fokozat: Összkomfort
Kor: Új építésű
Elhelyezkedés: Udvari
Szintek száma: Földszintes
Bútorozott: Nem bútorozott
Egész szobák: 3
Nappalik: 1

Egyéb jellemzők

  • Beépíthető tetőtér
  • Csatorna
  • Garázs
  • Kábel TV
  • Melléképület
  • Padlás
  • Pince
  • Terasz

Így keressen családi házat négy egyszerű lépésben. Csupán 2 perc, kötelezettségek nélkül!

Szűkítse a családi házak
listáját
Válassza ki a megfelelő
családi házat
Írjon a hirdetőnek
Várjon a visszahívásra