Eladó családi ház Nyíregyháza, Oros, 75 000 000 Ft

Leírás

Nyíregyháza, Oroson, eladásra kínálunk egy 2024 -ben, Porotherm 30 -as téglaszerekezetű, 15 cm grafittal hőszigetelt újépítésű ikerházakat. 
Az ingatlanok tetőszerkezete fa, nyeregtetős, burkolatai kerámia és laminált burkolat, fűtése H -tarifás hősszívattyú, padlófűtéssel, nyílászárói 3 rétegű hőszigeteltek. 
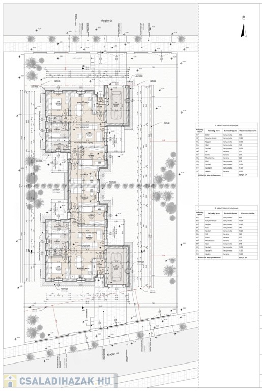
1 ingatlan: 107, 21 nm.   Nappali, Étkező, Konyha + 3 szoba. Az ingatlan össznégyzetméteréhez tartozik egy 16,20 nm-es garázs. 
2 ingatlan: 107,21 nm. Nappali, Étkező, Konyha + 3 szoba. Az  ingatlan össznégyzetméteréhez tartozik egy 16,20 nm-es garázs. 
Mindkét ingatlanhoz tartotik egy 490 nm-es füvesített terület fatelepítésekkel, az ingatlanok nyitott teraszai beton térkő burkolatot kaptak, a külső falak fehér és szürke színű nemesvakolaúak valamint 0,50 m széles kavicsszegély szépíti az épületet körvonalát.  
1 . 75 M 
2. 75 M 
Kérem keressenek bizalommal kérdéseikkel. Az ingatlan azonosítója: 96923Érdeklődni: +36304092510 Az ingatlan azonosítója: 96923 Érdeklődni: +36304092510

Családi ház részletei

Ár: 75 000 000 Ft
Méret: 107 négyzetméter
Azonosító: 11576456
Irodai azonosító: 96923
Városrész: Oros
Telek: 490 négyzetméter
Ingatlan állapota: Épülő
Jelleg: családi ház
Építőanyag: Tégla
Fűtés jellege: Geotermikus
Kor: 1-5 éves
Egész szobák: 3

Így keressen családi házat négy egyszerű lépésben. Csupán 2 perc, kötelezettségek nélkül!

Szűkítse a családi házak
listáját
Válassza ki a megfelelő
családi házat
Írjon a hirdetőnek
Várjon a visszahívásra