Eladó családi ház Nyíregyháza 74 990 000 Ft

Leírás

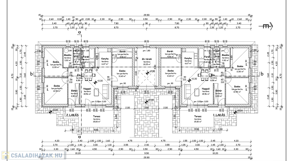
Eladó modern ikerház Nyíregyháza–Nyírszőlős központjában
 
Ingatlan adatai:
 

Alapterület: 105 négyzetméter
Telekterület: 450 négyzetméter
Szobák száma: 1 nappali + 3 hálószoba
Szerkezet: Tégla
Állapot: Azonnal költözhető, új építésű


 

Felszereltség és jellemzők:
 

Tágas, 15 négyzetméteres terasz közvetlen kertkapcsolattal
15 négyzetméteres saját garázs
Praktikus elosztás: külön gardróbszoba, fürdőszoba és két külön WC
Minőségi burkolatok: járólap és laminált parketta
Kiváló szigetelés: 15 cm-es homlokzati és 30 cm-es födémszigetelés
Modern nyílászárók: háromrétegű üvegezésű műanyag ablakok


 

Gépészet és fenntarthatóság:
 

Energiatakarékos hőszivattyús padlófűtés
Inverteres hűtő-fűtő klímaberendezés
Kész kerítés az árban, további költségek nélkül


 

Finanszírozás és kapcsolat:
 

Kedvezményes hitellehetőség igényelhető
Leinformálható, minőségi kivitelező
Az ingatlan azonosítója: 99752Érdeklődni: +3620/965-8200 Az ingatlan azonosítója: 99752 Érdeklődni: +3620/965-8200

Családi ház részletei

Ár: 74 990 000 Ft
Méret: 105 négyzetméter
Azonosító: 11598499
Irodai azonosító: 99752
Telek: 450 négyzetméter
Ingatlan állapota: Épülő
Jelleg: családi ház
Építőanyag: Tégla
Fűtés jellege: Geotermikus
Egész szobák: 3

Így keressen családi házat négy egyszerű lépésben. Csupán 2 perc, kötelezettségek nélkül!

Szűkítse a családi házak
listáját
Válassza ki a megfelelő
családi házat
Írjon a hirdetőnek
Várjon a visszahívásra