Eladó családi ház Nyíregyháza 74 990 000 Ft

Leírás

Azonnal költözhető, modern ikerház Nyíregyháza–Nyírszőlős központjában
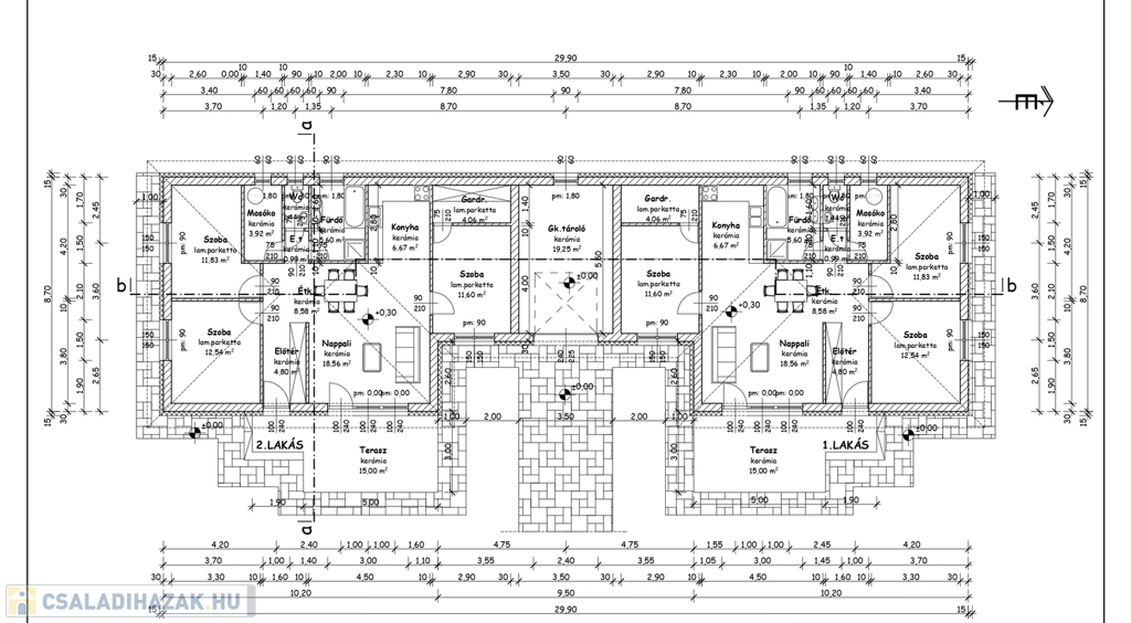
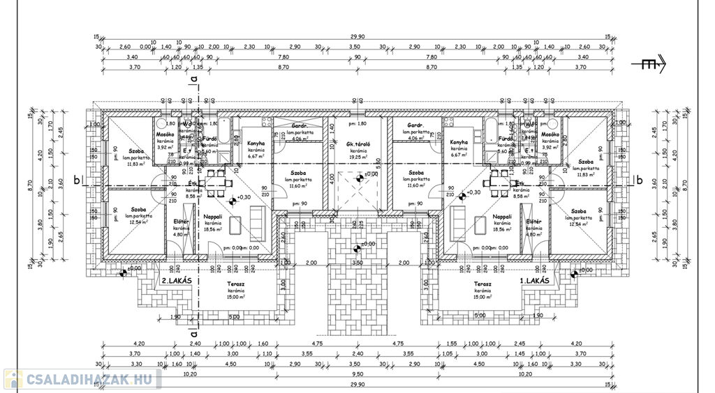
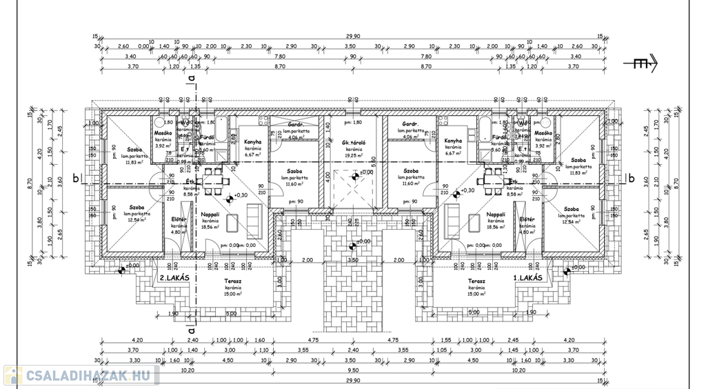
Nyíregyháza egyik kedvelt városrészében, Nyírszőlős központjában kínálunk megvételre egy 105 m²-es, kiváló elosztású ikerházat, amely ideális választás családok számára is.
Az ingatlan 3 szobával és egy tágas nappalival rendelkezik, amely közvetlen kapcsolatban áll a 15 m²-es terasszal, így a mindennapok és a pihenés tökéletes egyensúlyát nyújtja. A kényelmet tovább növeli a fürdőszoba, két külön WC és egy önálló gardróbszoba.
A ház minőségi burkolatokkal készült (járólap és laminált parketta), valamint háromrétegű üvegezésű műanyag nyílászárókkal felszerelt. Az energiatakarékos megoldásokról hőszivattyús padlófűtés, illetve inverteres hűtő-fűtő klíma gondoskodik. A kiváló hőszigetelést 15 cm-es homlokzati és 30 cm-es födémszigetelés biztosítja.
Az ingatlan 450 m²-es telken helyezkedik el, 15 m²-es garázzsal, és leinformálható, minőségi kivitelezőtől származik.
Az ár tartalmazza a teljes kerítést is, így további költségekkel nem kell számolni.
Kedvezményes hitellehetőség elérhető – kérje személyre szabott ajánlatunkat, és tegye meg az első lépést új otthona felé! Energetikai besorolása: A+++Az ingatlan azonosítója: 99747Érdeklődni: +36303275386 Az ingatlan azonosítója: 99747 Érdeklődni: +36303275386

Családi ház részletei

Ár: 74 990 000 Ft
Méret: 105 négyzetméter
Azonosító: 11598491
Irodai azonosító: 99747
Telek: 450 négyzetméter
Ingatlan állapota: Épülő
Jelleg: családi ház
Építőanyag: Tégla
Fűtés jellege: Geotermikus
Egész szobák: 3

Így keressen családi házat négy egyszerű lépésben. Csupán 2 perc, kötelezettségek nélkül!

Szűkítse a családi házak
listáját
Válassza ki a megfelelő
családi házat
Írjon a hirdetőnek
Várjon a visszahívásra