Eladó családi ház Nyíregyháza, Sóstóhegy, 74 000 000 Ft

Leírás

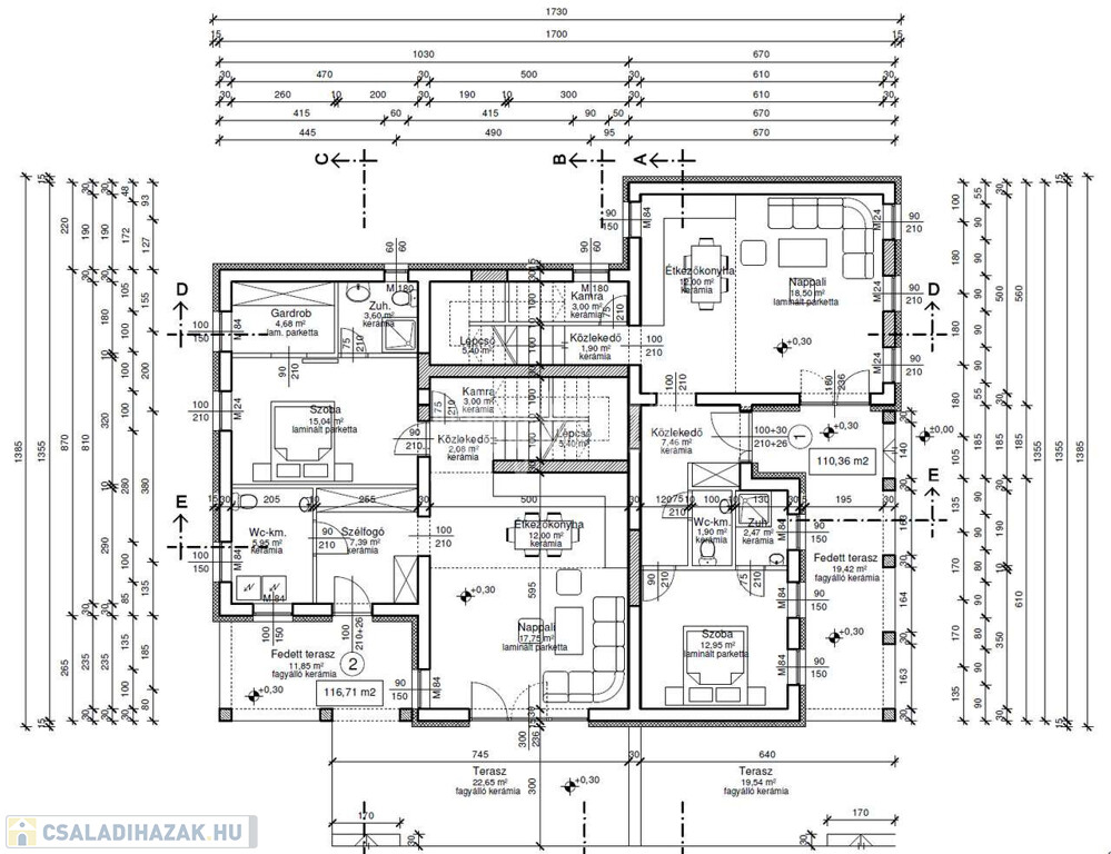
Nyíregyháza, Sóstóhegy csendes aszfaltozott utcájában új építésű iker ház lefoglalható az ingatlan jelenleg építés alatt van állnak a falak és rajta a beton koszorú. Az iker házak kicsit eltérő méretűek, 106 és 116 m2-s,  három különnyíló szobás, amerikai konyha+étkező+nappali egy térben, fürdőszoba, zuhany+wc, külön wc, gardrob, kamra a földszinten burkolt 11 és 19 m2-s fedett terasz, emeleten 14 és 19 m2-s nyitott terasz található. Fűtése hőszivattyú+padlófűtés továbbá 3,5 KW-s Inverteres klíma, 7 légkamrás műanyag nyílászárós, Porotherm 30-as téglából épül, beton födémes, lapos szigetelt tetős, külsőleg 15 cm-s szigetelés. Mindkét házhoz tartozik szép kerítés és szilárd alappal ellátott gépkocsi beálló. A telek területe mind két háznak egyenként 500 m2. KÖLTÖZÉS SZERZŐDÉSTŐL SZÁMÍTVA 10-12 HÓNAP!

Családi ház részletei

Ár: 74 000 000 Ft
Méret: 106 négyzetméter
Azonosító: 11595501
Irodai azonosító: 6262
Városrész: Sóstóhegy
Telek: 500 négyzetméter
Ingatlan állapota: Épülő
Jelleg: ikerház
Építőanyag: Tégla
Fűtés jellege: Hőszivattyú
Fűtés módja: Villany
Komfort fokozat: Összkomfort
Kor: Új építésű
Szintek száma: 2 szint
Bútorozott: Nem bútorozott
Egész szobák: 3
Nappalik: 1

Egyéb jellemzők

  • Beépíthető tetőtér
  • Csatorna
  • Garázs
  • Kábel TV
  • Melléképület
  • Padlás
  • Parketta
  • Pince
  • Terasz

Így keressen családi házat négy egyszerű lépésben. Csupán 2 perc, kötelezettségek nélkül!

Szűkítse a családi házak
listáját
Válassza ki a megfelelő
családi házat
Írjon a hirdetőnek
Várjon a visszahívásra